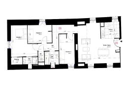
CANCALE - hypercentre - appartement 4 pièces 88.51m² - 2ème étage - stationnement. Idéalement situé, dans l'hypercentre de Cancale, à 250 mètres de la mer et du port au charme intemporel et authentique, à seulement 10 min en voiture de Saint-Malo et à proximité immédiate à toutes commodités dans un rayon de 5 min à pied (banques, commerces, écoles, musées), dans une résidence réhabilitée bénéficiant de restauration des décors (moulures, corniches, rosaces), parquet flottant... situé au deuxième étage, appartement 4 pièces comprenant : un séjour salon avec cuisine ouverte, trois chambres, salle d'eau, salle de bains, dressing, wc indépendant. Stationnement sous-sol. Prix promoteur Les informations sur les risques auxquels ce bien est exposé sont disponibles sur le site Géorisques : www.georisques.gouv.fr Copropriété de 22 lots - dont 22 lots habitation. (Pas de procédure en cours). Charges annuelles : 1267 euros.