CANNES Résidence en copropriété, appartement 2 pièces ( 40
Cannes 06400
Centre Ville
Honoraires à la charge de l'acquéreur (Prix hors honoraires : 195000 euros).
Appartement à rénover Bel immeuble de caractère, proche centre-ville et bord de mer
Situé au 68 avenue de Grasse, dans une copropriété calme et dominante, cet appartement orienté Nord se trouve au premier étage sans ascenseur.
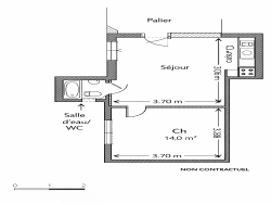
Il se compose de :
Une pièce principale à usage de séjour/salon avec coin cuisine,
Une salle de bains,
Une chambre d'environ 14 m2
L'ensemble est en état d'usage avancé, offrant un fort potentiel de rénovation pour créer un espace de vie confortable et personnalisé. Les informations sur les risques auxquels ce bien est exposé sont disponibles sur le site Géorisques : www.georisques.gouv.fr
23 m²
2
1
1
1
1
10.42 %
86 € / mois
1948
Nord
Oui
1
Oui
Oui
Consommations énergétiques
Logement économe
194
Logement énergivore (kWhEP/m2/an)
Émissions de gaz à effet de serre
Faible émission de GES
7
Forte émission de GES(kgeqCO2/m2/an)
Contact Pierre Francois Immobilier
Contacter gratuitement à l'aide du formulaire ci-dessous.