Découvrez ce charmant appartement T4 situé au 2ème étage d'un immeuble de 5 étages construit en 1850. Avec une surface habitable de 79,91 m² et une surface au sol de 85,00 m², cet appartement offre un potentiel incroyable pour ceux qui cherchent à personnaliser leur espace de vie.
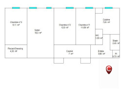
L'appartement comprend 4 pièces, dont 3 chambres, une salle d'eau et un WC indépendant. Le balcon de 5,00 m² est un véritable atout, offrant un espace extérieur pour profiter des moments de détente. L'exposition est à l'est, ce qui permet de bénéficier d'une lumière naturelle agréable.
Bien que l'appartement soit à rénover, les parties communes de l'immeuble sont en bon état, et un ascenseur est disponible pour votre confort. Le chauffage est individuel, et la cuisine est indépendante, offrant une flexibilité totale pour aménager l'espace selon vos goûts.
Imaginez-vous vivre dans cet appartement spacieux, avec une vue imprenable sur la ville. Les possibilités sont infinies : créez un intérieur moderne et élégant, ou conservez le charme d'antan. Cet appartement est une toile vierge, prête à être transformée en votre havre de paix.
Ne manquez pas cette opportunité unique de posséder un appartement avec un tel potentiel. Contactez-nous dès aujourd'hui pour plus d'informations et pour organiser une visite.
À proximité, vous trouverez plusieurs commodités pour faciliter votre quotidien.
Honoraires à la charge du vendeur. Dans une copropriété de 37 lots. Quote-part moyenne du budget prévisionnel 1 280 /an. Aucune procédure n'est en cours. Classe énergie D, Classe climat D Montant estimé des dépenses annuelles d'énergie pour un usage standard : entre 1125.00 et 1523.00 sur les années 2021, 2022 et 2023 (abonnements compris). Les informations sur les risques auxquels ce bien est exposé sont disponibles sur le site Géorisques : georisques.gouv.fr.
Carte pro. CPI 0605 2016 000 005 610
79.91 m²
4 943 €
5.00 m²
4
3
1
1 (séparé)
2 sur 5
26/01/2026
1850
Est
1 (5.00 m²)
Oui
Oui (37 lots)
Consommations énergétiques
Logement économe
144
Logement énergivore (kWhEP/m2/an)
Émissions de gaz à effet de serre
Faible émission de GES
31
Forte émission de GES(kgeqCO2/m2/an)
Contact Cabinet city nice
Contacter gratuitement à l'aide du formulaire ci-dessous.