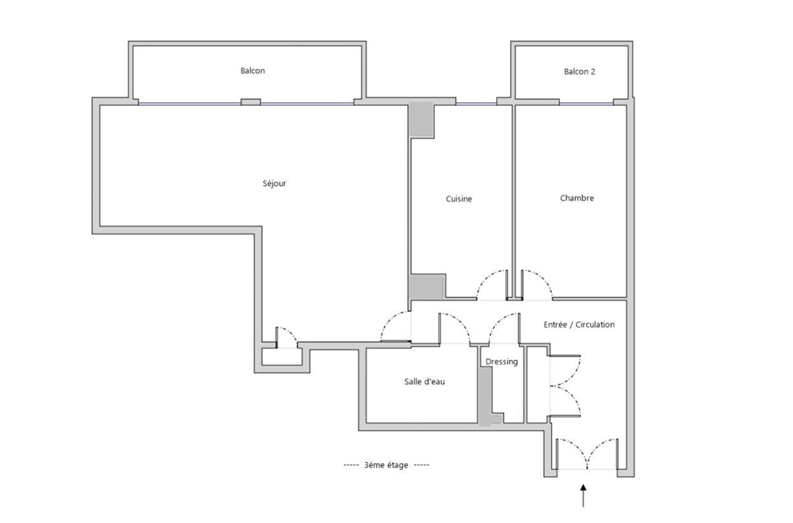
CENTRE HISTORIQUE - EMPLACEMENT DE PREMIER CHOIX situé à seulement deux pas du port, dans l'avenue principale de Cassis, sublime duplex rénové de 80 m2 avec un long balcon vue sur le port. Alliant charme et inspiration contemporaine, le coté intimiste de ce joli immeuble parfaitement entretenu qui accueille en son deuxième et dernier étage cet élégant lieu de vie vous séduira. Offrant de beaux volumes et de nombreux angles de vues sur le port et le château, cet appartement comprend deux chambres, deux salles d'eau, une cuisine équipée ouvrant sur le séjour, et une petite pièce atelier pouvant faire office de troisième chambre d'appoint. La localisation, le cachet et la qualité de la rénovation en font un bien unique. Plus de renseignements sur demande. Ce bien vous est présenté par Astone Immobilier, contacter Océane WAICHE (Agent Mandataire Commercial immatriculé au RSAC de Marseille sous le numéro 828018879) au +33(0)6.18.58.03.22 ou par mail : oceanew@astoneimmo.com pour visiter ce bien. Montant des dépenses annuelles d'énergie pour un usage standard compris entre 950 EUR et 1350EUR par an, prix moyens des énergies indexés au 1 janvier 2021 (abonnements compris). Honoraires à la charge du vendeur inclus dans le prix. Bien soumis au régime de la copropriété, copropriété de 5 lots. Pas de procédure en cours. Les informations sur les risques auxquels ce bien est exposé sont disponibles sur le site Géorisques, http://www.georisques.gouv.fr.
Duplex
80 m²
9 188 €
4 m²
31 m²
4
2
2
1
2 sur 2
150 € / mois
1900
Individuel
Américaine équipée
Sud
1 (4 m²)
Oui
Oui
Oui (5 lots)
Consommations énergétiques
Logement économe
192
Logement énergivore (kWhEP/m2/an)
Émissions de gaz à effet de serre
Faible émission de GES
6
Forte émission de GES(kgeqCO2/m2/an)
Contact WAICHE
Contacter gratuitement à l'aide du formulaire ci-dessous.