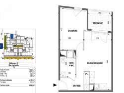
CASTELNAU LE LEZ - Dans une résidence récente et sécurisée , Appartement T2 de 41.30m2 situé en rez de chaussée comprenant un séjour avec cuisine americaine donnant sur une terrasse de 5.15m2, une chambre , une salle de bains et un wc. Ainsi qu'un garage . Tramway ligne 2, arrêt CENTURIONS au pied de l'immeuble. Bien soumis au statut juridique de la copropriété. Charges annuelles de copropriété (Montant moyen annuel quote-part du budget prévisionnel vendeur): 1520EUR Les informations sur les risques auxquels ce bien est exposé sont disponibles sur le site Géorisques : www. georisques. gouv. fr Pour tous renseignements complementaires ou visite veuillez contacter : Martine ABAD 06.23.14.84.49- Agence AMJ IMMO
41.3 m²
3 801 €
2
1
1
1
166 € / mois
2014
Nord
Oui
1
1
Oui
Consommations énergétiques
Logement économe
103
Logement énergivore (kWhEP/m2/an)
Émissions de gaz à effet de serre
Faible émission de GES
5
Forte émission de GES(kgeqCO2/m2/an)
Contact Amj Immo
Contacter gratuitement à l'aide du formulaire ci-dessous.