Cazères, située à 45 minutes de Toulouse et facilement accessible via l'A64, offre toutes les commodités nécessaires : commerces, écoles, gare SNCF et services de proximité.
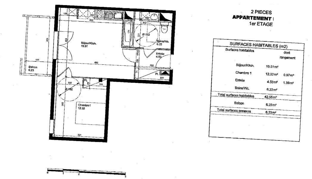
Nous vous proposons à la vente un appartement T2 en rez-de-jardin, d'une surface de 38,18 m², bénéficiant d'un jardin privatif.
Le logement se compose d'un séjour avec cuisine ouverte, d'une chambre avec placard intégré, d'une salle de bains et de toilettes séparées.Deux places de stationnement extérieures viennent compléter ce bien.
Le logement est vendu loué, offrant ainsi un investissement locatif.
Informations financières : Loyer : 421,55 / mois (dont 45 de provisions sur charges) Taxe foncière : 494 / an Charges de copropriété : 789,6 / an
Honoraires à la charge du vendeur. Dans une copropriété de 252 lots. Aucune procédure n'est en cours. DPE en cours. Les informations sur les risques auxquels ce bien est exposé sont disponibles sur le site Géorisques : georisques.gouv.fr.
38.18 m²
1 831 €
2
1
1
1 (séparé)
2008
Est
2
9
Oui
Oui (252 lots)
Contact C2i SUD OUEST
Contacter gratuitement à l'aide du formulaire ci-dessous.