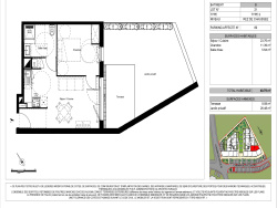
Centre village Appartement T2 avec jardin et terrasse
Carignan-de-Bordeaux 33360
0
Honoraires à la charge de l'acquéreur (Prix hors honoraires : 175142.9 euros).
API IMMOBILIER vous propose de vous installer au coeur du Village de CARIGNAN de BORDEAUX, dans cet appartement T2, situé au rezde chaussée de la nouvelle résidence. Il dispose d'un séjour avec cuisine ouverte, ouvert sur une terrasse suivie d'un jardinet privatif, une chambre et une salle d'eau. Une place de parking luis est également réservé. Nous sommes à votre disposition pour vous donner tous les détails.
40.79 m²
4 508 €
23 m²
2
1
1
5.00 %
1
1
Contact Api Immobilier
Contacter gratuitement à l'aide du formulaire ci-dessous.