Goodshowcase

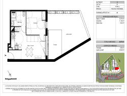
Vente appartement 2 pièces
183 900 €

Contact Api Immobilier

Contacter gratuitement à l'aide du formulaire ci-dessous.


Afficher le téléphone


Annonces similaires

Vente appartement

Bordeaux 33100 - 0

192 000 €

...Ce bien de 32 m2 bénéficie d'une conception contemporaine et de finitions irréprochables, offrant...

Voir l'annonce

Vente appartement

Bordeaux 33100 - 0

189 000 €

...Niché au dernier étage d'une résidence contemporaine, cet appartement bénéficie des prestations...

Voir l'annonce

Vente appartement

Carignan-de-Bordeaux 33360 - 0

195 000 €

...Dans une résidence proche de toutes les commodités, au premier étage, appartement T2 de 44 m2...

Voir l'annonce