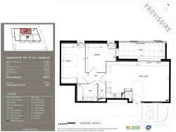
A l'est de Montpellier, dans une commune alliant patrimoine historique et environnement naturel préservé, je vous propose un T3 de 64m² au premier et dernier étage d'une petite copropriété de 10 logements à deux pas de toutes les commodités du centre village. L'espace habitable comprend un grand séjour-cuisine de 32m², deux chambres de 13 et 10m², une salle de bain et des toilettes séparés. Le séjour ouvre sur une terrasse de 10m² orientée nord-ouest. Vous disposez de 2 stationnements sécurisés. Vous êtes à quelques minutes en voiture de la gare de Baillargues (réseau TER journalier vers Montpellier et Nimes). L'accès direct à l'autoroute relie la Metropole de Montpellier, les gares TGV ou l'aéroport. La commune est desservie par de nombreuses lignes de Bus, et l'extension de la ligne A du bustram est prévue pour 2028. Autres disponibilités sur cette résidence : un T4 et un T2. Contactez moi pour de plus amples informations. Carole Ducoin-EI, votre consultante partenaire RSAC de Montpellier N° 832 505 465.
Honoraires à la charge du vendeur. Dans une copropriété de 10 lots. Quote-part moyenne du budget prévisionnel 1 400 /an. Aucune procédure n'est en cours. DPE vierge. Les informations sur les risques auxquels ce bien est exposé sont disponibles sur le site Géorisques : georisques.gouv.fr.