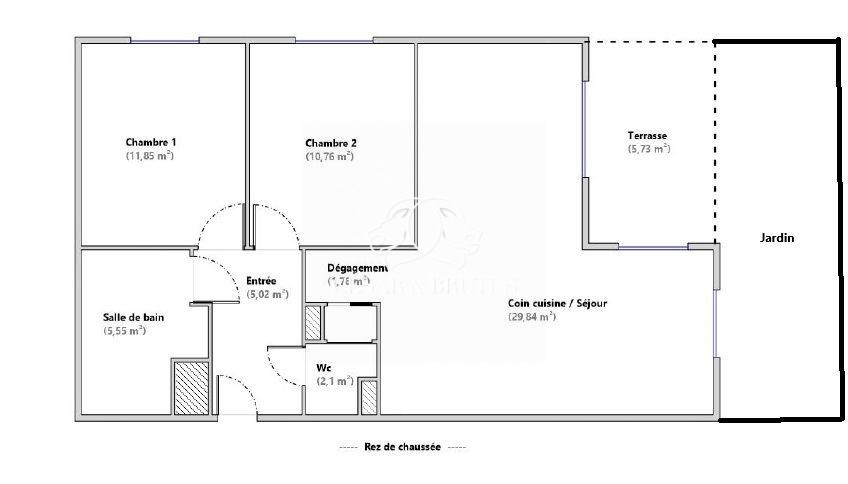
Centre-ville, à deux pas des commerces et des transports et au 1er étage sur 4 d'une résidence sécurisée de 2016, venez découvrir ce beau T4 de 96 m². Il se compose d'une entrée, d'une belle pièce de vie de 35 m² avec balcon de 7 m² et cuisine ouverte donnant accès à une belle terrasse de 18 m² au calme, côté jardin. Le coin nuit se compose de 3 chambres dont une donnant également sur la terrasse, d'une salle de bain et d'un wc séparé.
Un garage fermé en sous-sol est disponible en supplément (+15 000 ).
Ce qu'on aime :
- Appartement traversant Nord/Sud - Un balcon et une terrasse - Un garage
Prix de vente du bien : 358 000 honoraires d'agence à la charge du vendeur. DPE (C) GES (C)
Appartement soumis au régime de la copropriété. Pas de procédure en cours. Charges mensuelles : 160 comprenant les charges communes, l'entretien de la chaudière. Taxe foncière : 1389
Les informations sur les risques auxquels ce bien est exposé sont disponibles sur le site Géorisques : www.georisques.gouv.fr Contactez Margaux GUIGNABAUDET margaux@cesaretbrutus.com 07 70 45 62 87 - Agent commercial indépendant RSAC n° 819 206 160
Honoraires à la charge du vendeur. Dans une copropriété de 114 lots. Quote-part moyenne du budget prévisionnel 1 920 /an. Aucune procédure n'est en cours. Classe énergie C, Classe climat C Montant estimé des dépenses annuelles d'énergie pour un usage standard : entre 850.00 et 1190.00 sur les années 2021, 2022 et 2023 (abonnements compris). Les informations sur les risques auxquels ce bien est exposé sont disponibles sur le site Géorisques : georisques.gouv.fr.