Les charges de location sont prévisionnelles mensuelles avec régularisation annuelle.
La part des honoraires pour la réalisation de létat des lieux de ce bien est de 145.33 euros.
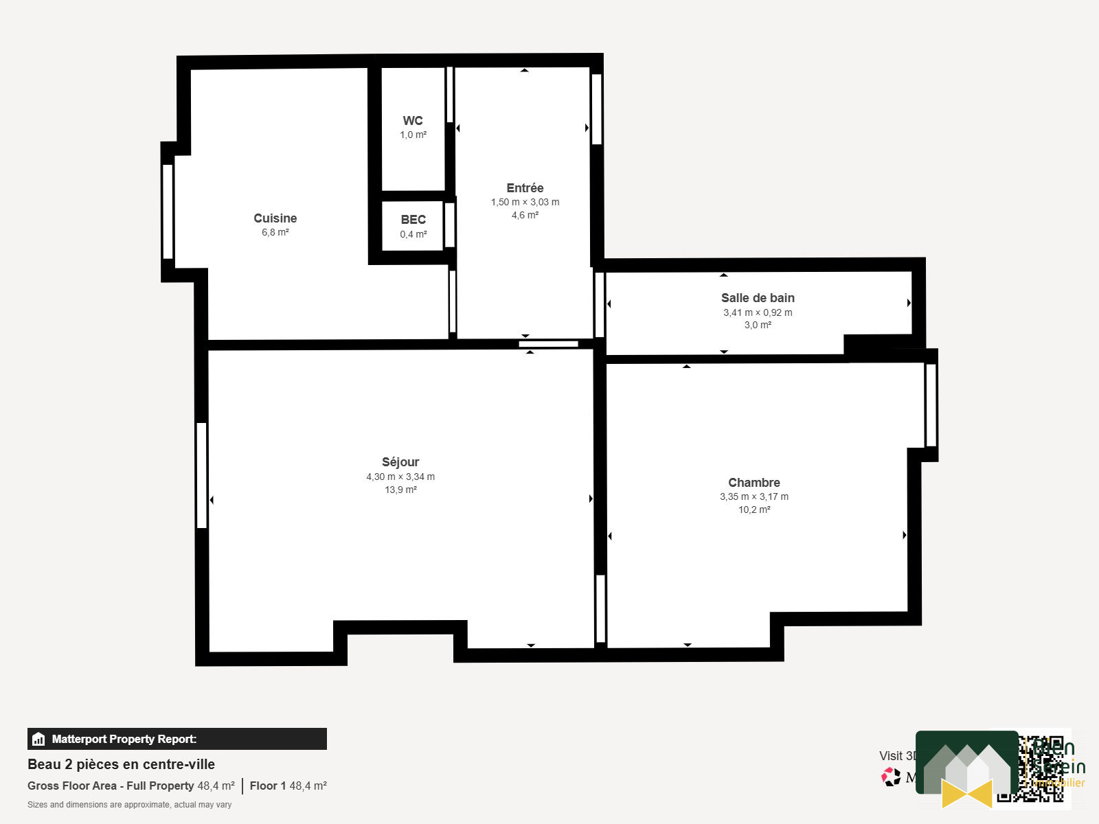
Situé en Centre-ville, Appartement 3 pièces de 58.13 m2 au 1er Etage sans ascenseur, comprenant : Entrée, Séjour, Cuisine Aménagée et Semi-équipée (Hotte, Plaque), 2 Chambres avec Salle d'eau, Dégagement, WC. Chauffage Collectif Gaz. LOGEMENT CONVENTIONNE SOUMIS A DES CONDITIONS BIEN PARTICULIERES Loyer : 552.65 EUR - Charges : 135 EUR (CC+OM+CHAUFF+CEC) - DG : 552.65EUR - Honoraires : 523.16 EUR dont 145.33EUR pour l'Etat des lieux. CLASSE ÉNERGIE : C (142) - CLASSE CLIMAT : C (13). Montant estimé des dépenses annuelles d'énergie pour un usage standard entre 620 EUR et 900EUR (2021). DISPONIBLE le 21 Juillet 2026
58.13 m²
17 m²
3
2
2
1
1
523.17 %
21/07/2026
135 € / mois
1949
Oui
Consommations énergétiques
Logement économe
142
Logement énergivore (kWhEP/m2/an)
Émissions de gaz à effet de serre
Faible émission de GES
13
Forte émission de GES(kgeqCO2/m2/an)
Contact As Immo
Contacter gratuitement à l'aide du formulaire ci-dessous.