Honoraires à la charge de l'acquéreur (Prix hors honoraires : 1400000 euros).
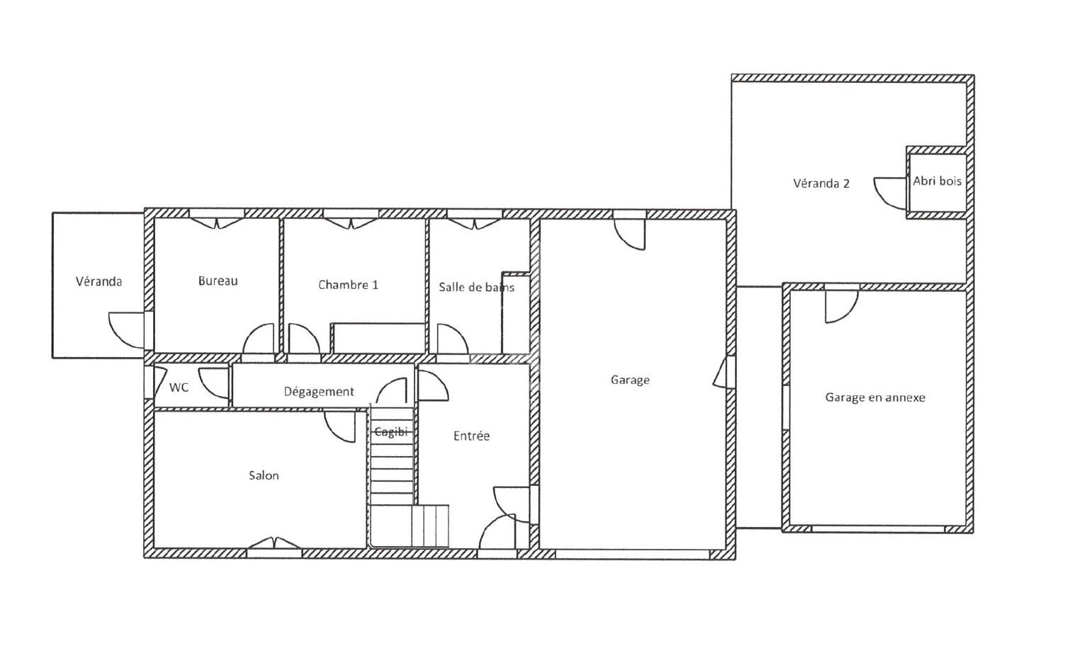
C'est au coeur de Biarritz, sur une jolie parcelle de 508m2 située dans une petite rue calme et résidentielle que se niche cette maison avec garage édifiée sur 3 niveaux.
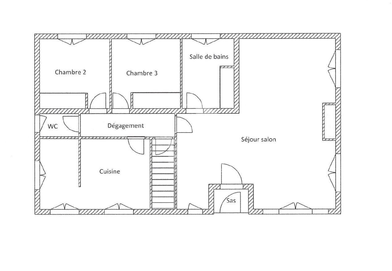
L'entrée dessert un double séjour avec cheminée prolongé d'une terrasse à la vue dégagée sur le jardin. Une cuisine indépendante, une chambre et un cabinet de toilettes complètent le rez de chaussée.
L'étage propose 2 chambres et une salle de bains avec toilettes.
Le rez de jardin dispose d'un salon télé, de deux autres chambres et d'un cabinet de toilettes.
Emplacement idéal pour un mode de vie proche de toutes les commodités dans un environnement privilégié.
Contacter Agnès Arribe au 06 22 70 80 56.
Honoraires inclus de 5% TTC à la charge de l'acquéreur. Prix hors honoraires 1 400 000 . Classe énergie D, Classe climat D Montant estimé des dépenses annuelles d'énergie pour un usage standard : entre 2500.00 et 3430.00 sur les années 2021, 2022 et 2023 (abonnements compris). Les informations sur les risques auxquels ce bien est exposé sont disponibles sur le site Géorisques : georisques.gouv.fr.
145 m²
10 138 €
508 m²
6
5
1
1
2 (séparés)
5 %
1965
1
1
1
Consommations énergétiques
Logement économe
230
Logement énergivore (kWhEP/m2/an)
Émissions de gaz à effet de serre
Faible émission de GES
37
Forte émission de GES(kgeqCO2/m2/an)
Contact Millésime Immobilier
Contacter gratuitement à l'aide du formulaire ci-dessous.