EXCLUSIVITÉ PREMIUM- Idéalement situé dans un secteur recherché du Centre Ville Ouest Les Ormeaux, à proximité des établissements scolaires (Fac, Lycée, des commerces et des commodités, cet immeuble en monopropriété représente une opportunité patrimoniale pour investisseurs. L'immeuble se compose de 4 appartements de type F2, tous loués en meublé, offrant une rentabilité immédiate, une gestion simplifiée et une absence de charges de copropriété.
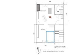
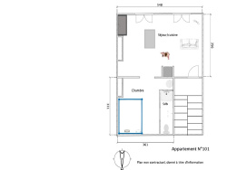
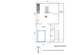
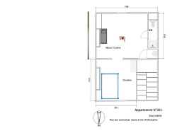
Au rez-de-chaussée : Un APPARTEMENT de type F2 loué en meublé et comprenant : Séjour avec coin cuisine, une chambre, salle de douches avec water-closet. Au 1er étage : Un APPARTEMENT de type F2 loué en meublé comprenant : Séjour avec coin cuisine, une chambre, salle de douches avec water-closet. Au 2ème étage : Un APPARTEMENT de type F2 loué en meublé comprenant : Séjour avec coin cuisine, une chambre, salle de douches avec water-closet. Au 3ème étage : Un APPARTEMENT de type F2 loué en meublé comprenant : Séjour avec coin cuisine, une chambre, salle de douches avec water-closet. Cave, dépendance et cour. Revenu locatif annuel : 22 080 EUR. « Les informations sur les risques auxquels ce bien est exposé sont disponibles sur le site Géorisques : www.georisques.gouv.fr »
87 m²
3 787 €
1920
Oui
Consommations énergétiques
Logement économe
227
Logement énergivore (kWhEP/m2/an)
Émissions de gaz à effet de serre
Faible émission de GES
8
Forte émission de GES(kgeqCO2/m2/an)
Contact PLANES
Contacter gratuitement à l'aide du formulaire ci-dessous.