POURQUOI PAS se réveiller chaque matin face à cette vue imprenable sur la chaîne du Mont-Blanc, en investissant dans un magnifique chalet à la montagne ?
Ce chalet vendu clés en main, est situé à Combloux, une station familiale surnommée 'la Perle du Mont-Blanc', qui jouxte la station de Megève.
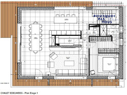
Surface Carrez de 242 m² pour une surface utile totale de 317 m². 5 chambres et 4 salles de bains.
Disposition : Niveau 0 : 1 garage fermé 2 voitures, 1 entrée, 1 ski-room, 1 buanderie, 1 salle de sport, 1 Chambres, 1 salle de bains, et 1 WC indépendant, 1 jacuzzi à l'extérieur Niveau 1 : 1 séjour, 1 salle à manger, 1 cuisine ouverte, 1 cellier, 1 chambre Master avec dressing, 1 salle de bains, 1 WC indépendant, balcons + terrasse Niveau 2 : 1 salon TV cinéma, 3 chambres, 2 salles de bains, 1 WC
Les + - Chalet clés en main disponible fin 2026 - Construction haut de gamme par un constructeur du secteur - Vue panoramique sur le Mont-Blanc, la chaîne des Fiz et des Aravis - Exposition plein sud - Dans le village familial et très prisé de Combloux - A proximité immédiate de Megève - Idéalement situé à 2h de Lyon
Un chalet prêt à vivre, lumineux, chaleureux et fonctionnel, où vous aurez plaisir à passer une partie de votre temps libre en famille ou entre amis. Idéal également à la location pour un complément de revenus.
Alors ... POURQUOI PAS VOUS ?
Contactez-moi pour en savoir plus et organiser une visite !
Eve 06 80 61 12 86 Instagram @eve_pourquoipasvous
Honoraires à la charge du vendeur. Non soumis au DPE. Les informations sur les risques auxquels ce bien est exposé sont disponibles sur le site Géorisques : georisques.gouv.fr.
Votre conseiller Pourquoi Pas Vous Immobilier : Eve CHALLETON Agent commercial (Entreprise individuelle). Visite virtuelle disponible sur le compte INSTAGRAM @pourquoi_pas_vous_immo