1 chambre(s) libre(s) dans une colocation de 1 chambres dans un appartment de 104m2
Un emplacement exceptionnel
Nichée dans le très central 2? arrondissement de Lyon, Place Ampère, la colocation Sylvêtre bénéficie :
d'un accès immédiat au métro Ampère - Victor Hugo (ligne A),
de la proximité de Perrache, Bellecour et des quais de Saône,
d'un cadre de vie animé et pratique, avec tous les commerces, cafés et transports à portée de main.
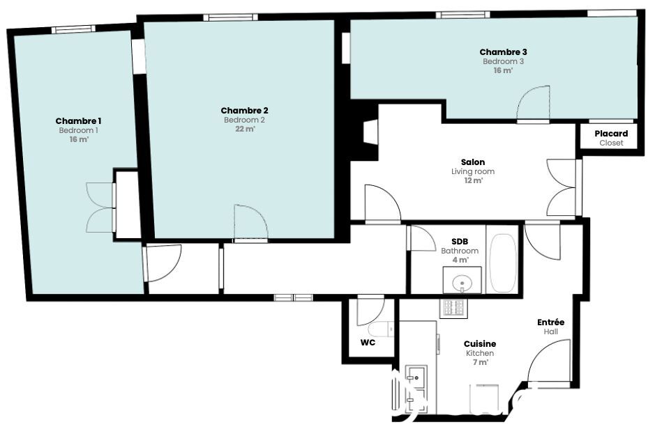
L'appartement
Surface totale : 108 m²
4 chambres meublées, équipées d'un lit double, grand placard, bureau, chaise et miroir
1 salle de bain moderne
Cuisine équipée : plaques, four, micro-ondes, lave-vaisselle, réfrigérateur, vaisselle fournie
Salon chaleureux avec canapé, table à manger,
Buanderie avec lave-linge
L'appartement est entièrement rénové, meublé avec soin, et pensé pour un usage en colocation confortable et fonctionnel.
Les frais de service LIVALIA sont à partir de 350 €.
Updated on 19/10/2025
Mise à jour le 19/10/2025
104 m²
1
1
1
5
Oui
Contact Justine
Contacter gratuitement à l'aide du formulaire ci-dessous.