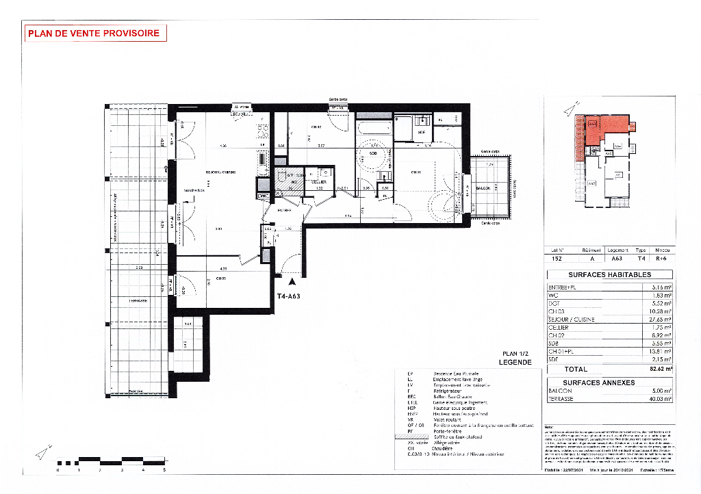
CHANTEPIE - Appartement 4 pièces de 88.35m² Ouest - terrasse et jardin 86.02m² - stationnement
Chantepie 35135
0
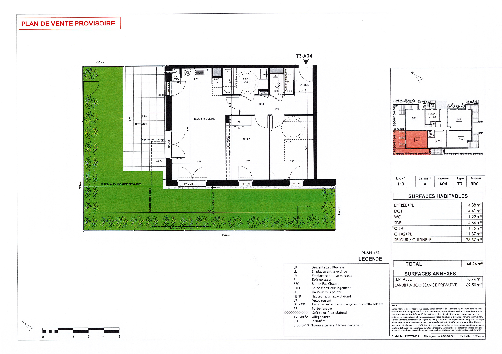
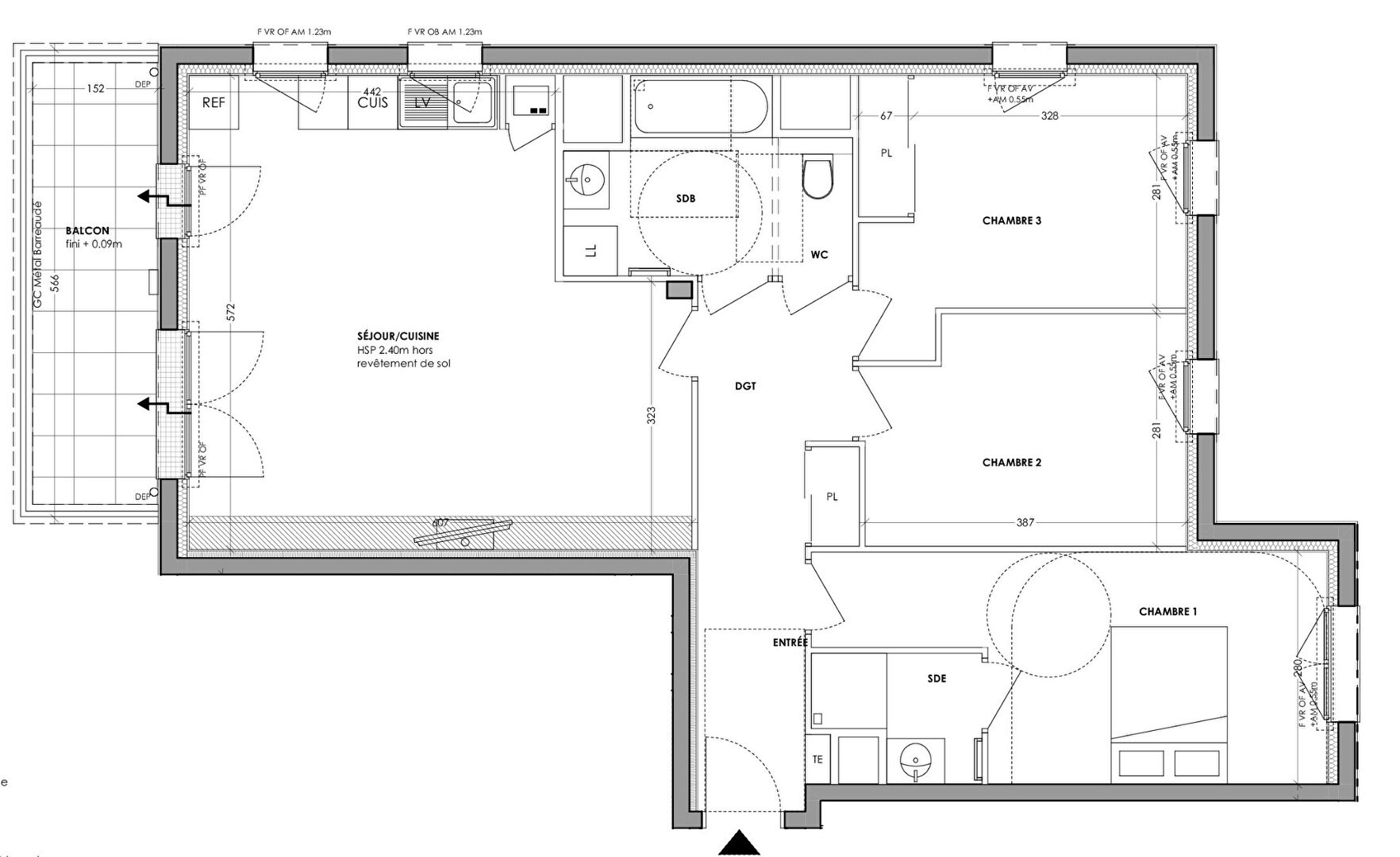
CHANTEPIE - Appartement 4 pièces de 88.35m² Ouest - terrasse et jardin 86.02m² - stationnements sécurisés en sous-sol et cave A 1.3km du centre de Chantepie, des commerces, du marché, des commodités, des services à proximité, des parcs et jardins,.. au sein d' un environnement verdoyant et résidentiel, appartement de 4 pièces exposé Ouest situé en rez-de-chaussée comprenant : un séjour salon avec cuisine ouverte, accès à la terrasse de 9.22m² et au jardin de 86.02m² exposé Ouest, 3 chambres, salle de bains, salle d'eau, wc indépendant, rangement. Stationnements privatifs en sous-sol sécurisés. Prix promoteur - frais de notaire réduits. Les informations sur les risques auxquels ce bien est exposé sont disponibles sur le site Géorisques : www.georisques.gouv.fr Copropriété de 42 lots - dont 42 lots habitation. (Pas de procédure en cours). Charges annuelles : 1267 euros.