CHANTEPIE - Maison 5 pièces - 118.38m² - Sud - terrasse et jardin 62.46 m² - stationnements
Chantepie 35135
0
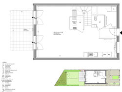
CHANTEPIE - Maison 5 pièces - 118.38m² - Sud - terrasse et jardin 62.46 m² - stationnements Située à seulement 12 minutes du centre-ville de Rennes, et à seulement 1.3kms du centre de Chantepie, proche des commerces, services, écoles, transports en commun (bus et accès rapide à la rocade rennaise), espaces verts et infrastructures sportives.. dans un environnement résidentiel, maison de 5 pièces de 118.38m² exposé plein Sud, comprenant : une entrée, vaste séjour salon de 50m² avec cuisine ouverte, accès à une terrasse et un jardin, buanderie, rangement, wc indépendant. à l'étage, dégagement, 4 chambres, salle de bains, salle d'eau, wc indépendant. wc indépendant. Carport, local vélos fermé et stationnements. Conçue pour être économe en énergie, cette maison bénéficie d'une pompe à chaleur, garantissant un confort optimal tout en réduisant votre consommation énergétique. Profitez du nouveau PTZ 2025 et concrétisez votre rêve de propriété dès aujourd'hui ! Prix promoteur - frais de notaire réduits - Les informations sur les risques auxquels ce bien est exposé sont disponibles sur le site Géorisques : www.georisques.gouv.fr. Photos non contractuelles - Suggestions d'aménagements