Honoraires à la charge de l'acquéreur (Prix hors honoraires : 95000 euros).
Vous cherchez un lieu professionnel qui sort du cadre ? Celui-ci le dépasse.
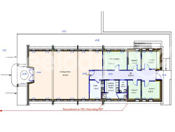
Hans KOLB vous propose un lieu unique pour donner de l'ampleur à votre activité professionnelle : une ancienne chapelle entièrement revalorisée offrant plus de 200 m2 de surface exploitable, implantée sur un terrain de plus de 3500 m2. Un ensemble rare qui combine cachet architectural, potentiel d'aménagement et implantation stratégique, à proximité immédiate des axes routiers RN 10 et RN 911.
* Travaux réalisés Toiture, charpente et menuiseries refaites à neuf : une base saine, pérenne et lumineuse pour accueillir votre activité ; Nouveau réseau électrique déjà tiré (alimentation et consuel à finaliser) Fibre optique disponible en bordure de propriété, indispensable pour toutes activités tertiaires. Réseaux secondaires eau et assainissement à raccorder : tuyaux de raccordement tirés depuis la voirie jusqu'au bâtiment.
* Un bien pensé pour les usages professionnels A destination exclusivement professionnelle (zone UX du PLUi), ce lieu convient parfaitement à : - une start-up ou une une entreprise innovante, - des bureaux atypiques, - une structure nécessitant des espace de réception, de stockage ou un showroom, - un atelier de fabrication valorisant l'authenticité et les volumes d'un bâtiment hors norme.
* Potentiel d'évolution Le terrain et ses règles d'urbanisme vous permettent d'envisager : - une extension du bâti existant, - la création d'un hangar ou d'un bâtiment supplémentaire, - l'optimisation d'un sens de circulation dédié aux poids lourds, grâce aux deux accès déjà mis en place.
Entreprendre dans un cadre architectural remarquable, tout en conservant une position stratégique au sein d'une zone économique active ... et si c'était fait pour vous ?
Contactez Hans KOLB au 06.02.33.90.42
(Bien non soumis à DPE)
Honoraires inclus de 7.53% à la charge de l'acquéreur. Prix hors honoraires 95 000 . Non soumis au DPE. Les informations sur les risques auxquels ce bien est exposé sont disponibles sur le site Géorisques : georisques.gouv.fr.
Votre conseiller WEELODGE CENTER : Hans KOLB Agent commercial (Entrepreneur individuel à responsabilité limitée) RSAC 908 315 880 RSAC ANGOULEME
Entrepôt
220 m²
464 €
7.53 %
Contact Hans KOLB
Contacter gratuitement à l'aide du formulaire ci-dessous.