Charbonnières Les Bains 4 pièces Terrasses et Jardin
Charbonnières-les-Bains 69260
0
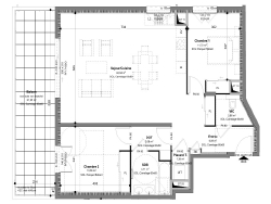
A proximité immédiate du centre de charbonnière, dans un très joli parc arboré, je vous propose à la vente cet très bel appartement de 109m² avec Terrasse et son jardin, aux dernières normes comprenant : une entrée, un séjour avec cuisine ouverte donnant sur une terrasse de 24,25m², une suite parentale avec salle de bains, deux autres chambres, une salle d'eau et 2 WC séparé. L'appartement est vendu avec un garage et une cave Isolation phonique et thermique renforcés, faibles charges. Visuel non contractuel. Merci de contacter votre conseiller Grégory pour plus d'informations Copropriété de 46 lots - dont 46 lots habitation. (Pas de procédure en cours). Charges annuelles : 1800 euros.