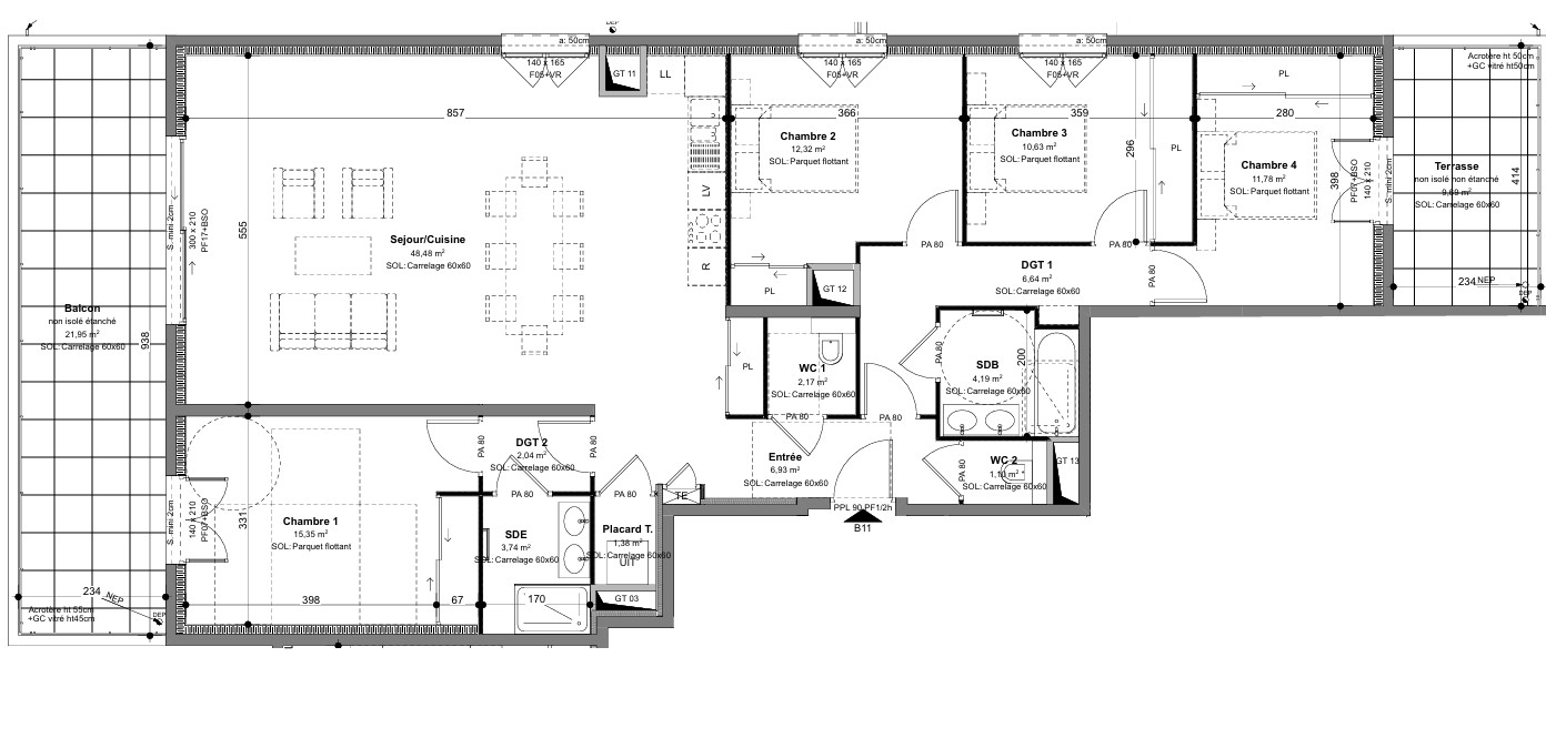
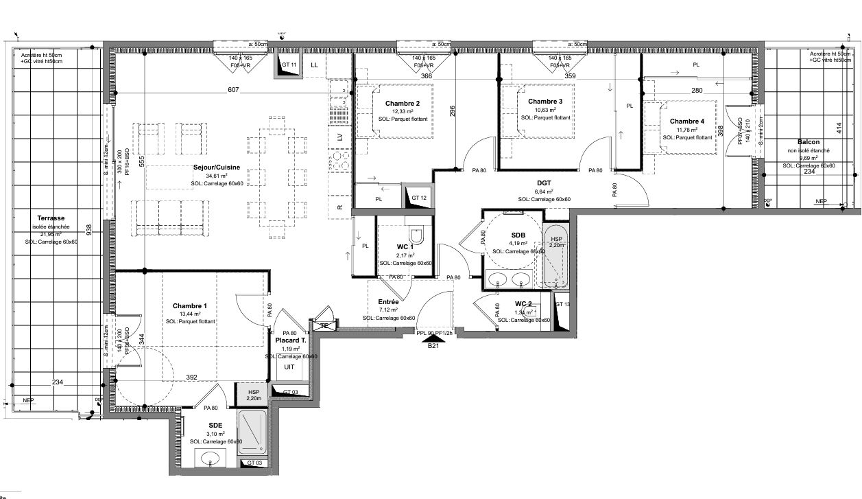
A proximité immédiate du centre de charbonnière, dans un très joli parc arboré, je vous propose à la vente cet appartement T5 de 116m² avec une très belle Terrasse, aux dernières normes comprenant : une entrée, un séjour avec cuisine ouverte donnant sur une terrasse de 77,41m², une suite parentale, trois chambres, une salle de bains et un WC séparé. L'appartement est vendu avec un garage double et une cave Isolation phonique et thermique renforcés, faibles charges. Visuel non contractuel. Merci de contacter votre conseiller Grégory pour plus d'informations Copropriété de 46 lots - dont 46 lots habitation. (Pas de procédure en cours). Charges annuelles : 1800 euros.