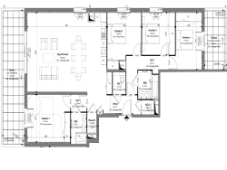
A proximité immédiate du centre de charbonnière, dans un très joli parc arboré, je vous propose à la vente, cet appartement de 126,75m² avec Terrasse et Balcon, aux dernières normes comprenant : une entrée, un séjour avec cuisine ouverte donnant sur une terrasse de 22m², une suite parentale avec salle d'eau, trois autres chambres dont une avec balcon de 10m², une salle de bains et deux WC. L'appartement est vendu avec un garage et une cave Isolation phonique et thermique renforcés, faibles charges. Visuel non contractuel. L'appartement est vendu avec un garage et une cave Merci de contacter votre conseiller Grégory pour plus d'informations Copropriété de 46 lots - dont 46 lots habitation. (Pas de procédure en cours). Charges annuelles : 2300 euros.