Charmant 2 pièces, en lisière du 11eme - Entre les métros
Paris 75020
0
Honoraires à la charge du vendeur.
En lisière du 11? arrondissement de Paris, à seulement 2 minutes des métros Avron (ligne 2) et Alexandre Dumas, SWIXIM vous propose ce charmant 2 pièces situé dans une copropriété ancienne.
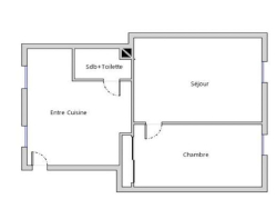
Au 1er étage (sans ascenseur), l'appartement se compose d'une pièce de vie avec salle à manger et cuisine américaine, d'un séjour donnant sur un jardin calme et fleuri, d'une chambre au calme, également orientée sur le jardin, ainsi que d'une salle d'eau avec WC.
À noter : des travaux de copropriété ont été votés mais ne sont pas encore réalisés. Des étais ont été installés temporairement afin de sécuriser le bâtiment dans l'attente de ces travaux.
Ses atouts ? Une excellente sectorisation, un quartier recherché et un fort potentiel.
Alors une seule chose à faire, contactez moi au 07 68 15 81 51, je vous accompagnerai pour votre projet immobilier !
La présente annonce immobilière a été rédigée sous la responsabilité éditoriale de Monsieur JAHMAN EI, Agent commercial inscrit au RSAC sous le numéro 830 556 502 Paris. Les informations sur les risques auxquels ce bien est exposé sont disponibles sur le site Géorisques : www.georisques.gouv.fr
La présente annonce immobilière a été rédigée sous la responsabilité éditoriale de Monsieur JAHMAN EI, Agent commercial inscrit au RSAC sous le numéro 830 556 502 Paris.
Les informations sur les risques auxquels ce bien est exposé sont disponibles sur le site Géorisques : www.georisques.gouv.fr
30 m²
9 100 €
11 m²
2
1
1 sur 5
1900
Est
Ouest
Oui
Oui (40 lots)
Consommations énergétiques
Logement économe
598
Logement énergivore (kWhEP/m2/an)
Émissions de gaz à effet de serre
Faible émission de GES
19
Forte émission de GES(kgeqCO2/m2/an)
Contact Mehdi JAHMAN
Contacter gratuitement à l'aide du formulaire ci-dessous.