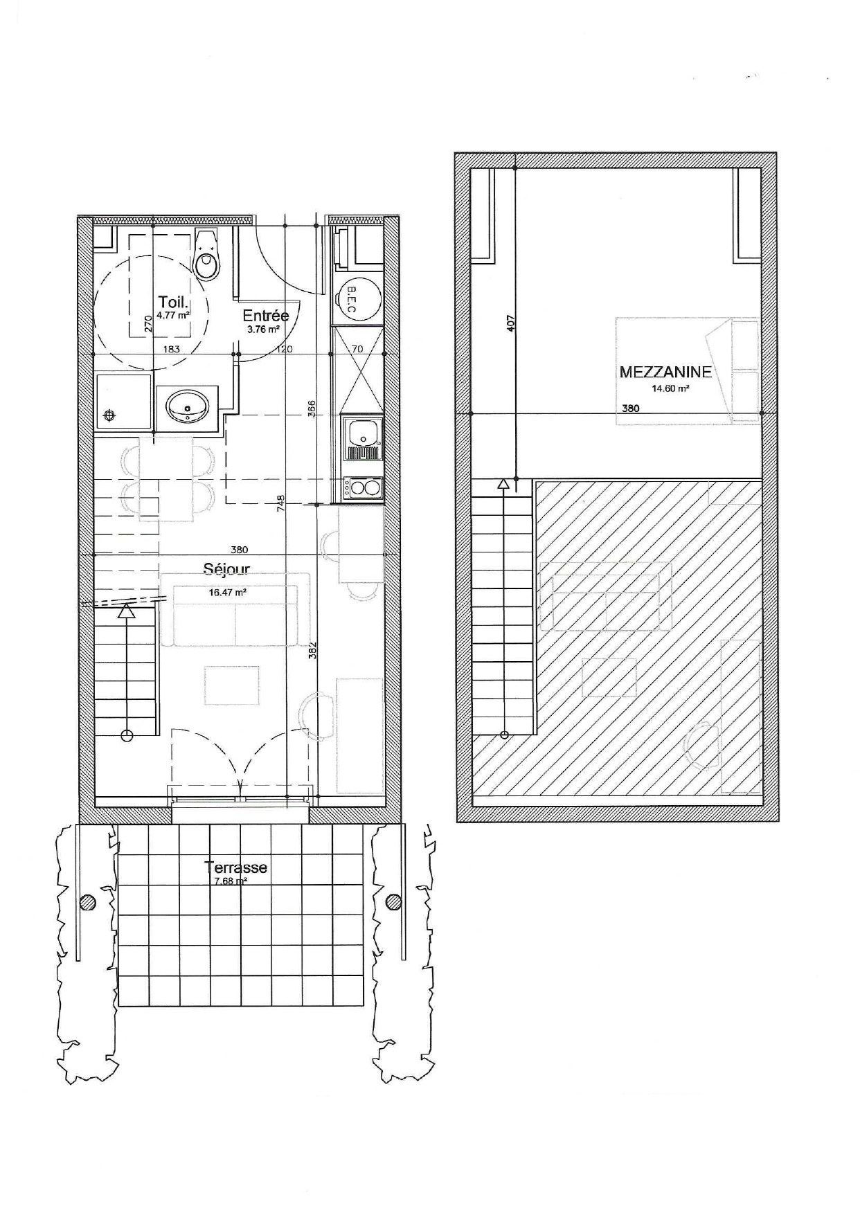
À vendre, appartement T2 de 31,66 m², situé en rez-de-chaussée dans le centre historique de Chartres, à deux pas de la cathédrale et des commerces.
? Actuellement loué 470 /mois hors charges ? Locataire en place, bail en cours ? Cuisine aménagée ouverte sur le séjour ? Chauffage individuel ? Petite copropriété bien entretenue, faibles charges
? Pour plus d'informations ou une visite, contactez-nous !
Honoraires à la charge du vendeur. Dans une copropriété de 8 lots. Aucune procédure n'est en cours. Classe énergie F, Classe climat C Logement à consommation énergétique excessive. Montant estimé des dépenses annuelles d'énergie pour un usage standard : entre 1080.00 et 1490.00 sur les années 2021, 2022 et 2023 (abonnements compris). Les informations sur les risques auxquels ce bien est exposé sont disponibles sur le site Géorisques : georisques.gouv.fr.
31.66 m²
2 817 €
2
1
1
1
Oui (8 lots)
Consommations énergétiques
Logement économe
423
Logement énergivore (kWhEP/m2/an)
Émissions de gaz à effet de serre
Faible émission de GES
14
Forte émission de GES(kgeqCO2/m2/an)
Contact Chartres Agglomération immmobilier
Contacter gratuitement à l'aide du formulaire ci-dessous.