Charmant appartement avec balcon et proche commodités
Condrieu 69420
0
Honoraires à la charge du vendeur.
Appartement T3 Charmant et Lumineux au centre de Condrieu (69420)
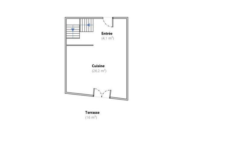
Découvrez ce charmant appartement T3 de 73.10 m², situé au 1er étage d'un immeuble de caractère construit en 1949. Ce bien ancien, en bon état général, allie charme d'antan et confort moderne pour vous offrir un cadre de vie agréable et lumineux.
Avec ses 3 pièces spacieuses, dont 2 chambres confortables, cet appartement est idéal pour une famille ou un couple souhaitant s'installer dans un quartier dynamique. Le séjour de 40 m² est un véritable espace de vie, baigné de lumière grâce à ses grandes ouvertures en bois. La cuisine américaine aménagée, moderne et fonctionnelle, est parfaite pour les amateurs de cuisine et les repas en famille ou entre amis.
Il est également possible de créer une 3ème chambre dans l'appartement.
L'appartement dispose également d'une salle de bains et d'un WC indépendant, offrant intimité et praticité. Un balcon de 6 m² vous permet de profiter des beaux jours et de la vue dégagée sur l'environnement. Les parties communes de l'immeuble sont également en bon état, garantissant un cadre de vie agréable et bien entretenu.
Situé dans un quartier animé, cet appartement est proche de toutes les commodités. À seulement 5 minutes à pied, vous trouverez plusieurs commerces d'alimentation générale, des restaurants, un médecin généraliste et un arrêt de bus. En 10 minutes à pied, vous pouvez rejoindre une maternelle, une école élémentaire, un collège et un hôpital. Une crèche est également accessible en 5 minutes en voiture.
Cet appartement est parfait pour ceux qui souhaitent rester connectés. Ne manquez pas cette opportunité de vivre dans un appartement charmant et bien situé.
Contactez-nous dès aujourd'hui pour une visite !
Honoraires à la charge du vendeur. Dans une copropriété de 7 lots. Aucune procédure n'est en cours. Classe énergie C, Classe climat A Montant estimé des dépenses annuelles d'énergie pour un usage standard : entre 900.00 et 1280.00 sur les années 2021, 2022 et 2023 (abonnements compris). Les informations sur les risques auxquels ce bien est exposé sont disponibles sur le site Géorisques : georisques.gouv.fr.