Les charges de location sont prévisionnelles mensuelles avec régularisation annuelle.
La part des honoraires pour la réalisation de létat des lieux de ce bien est de 81 euros.
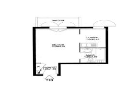
En plein coeur du village de Chaponost, découvrez ce charmant appartement T1 bis meublé de 27 m2 situé au 1er étage d'un petit bâtiment de 3 logements. L'entrée s'ouvre sur une pièce principale en parquet comprenant une cuisine ouverte, entièrement meublée et équipée (hotte, plaque à induction, four/micro-ondes, réfrigérateur, lave-linge, table bar et tabourets), ainsi qu'un séjour confortable avec canapé, meuble TV et table basse. La chambre, également en parquet, dispose d'un lit , de tables de chevet et d'un meuble de rangement avec penderie. La salle d'eau/WC, en carrelage, est aménagée avec meuble miroir et meuble lavabo. Fenêtres en bois double vitrage, fibre optique installée. Idéalement situé au 40 avenue Paul Doumer, à proximité immédiate des commodités.
27 m²
1
1
1
1
1 sur 2
450 %
17/11/2025
8.3 € / mois
Oui
1970
Oui
Consommations énergétiques
Logement économe
294
Logement énergivore (kWhEP/m2/an)
Émissions de gaz à effet de serre
Faible émission de GES
9
Forte émission de GES(kgeqCO2/m2/an)
Contact Gina Immobilier
Contacter gratuitement à l'aide du formulaire ci-dessous.