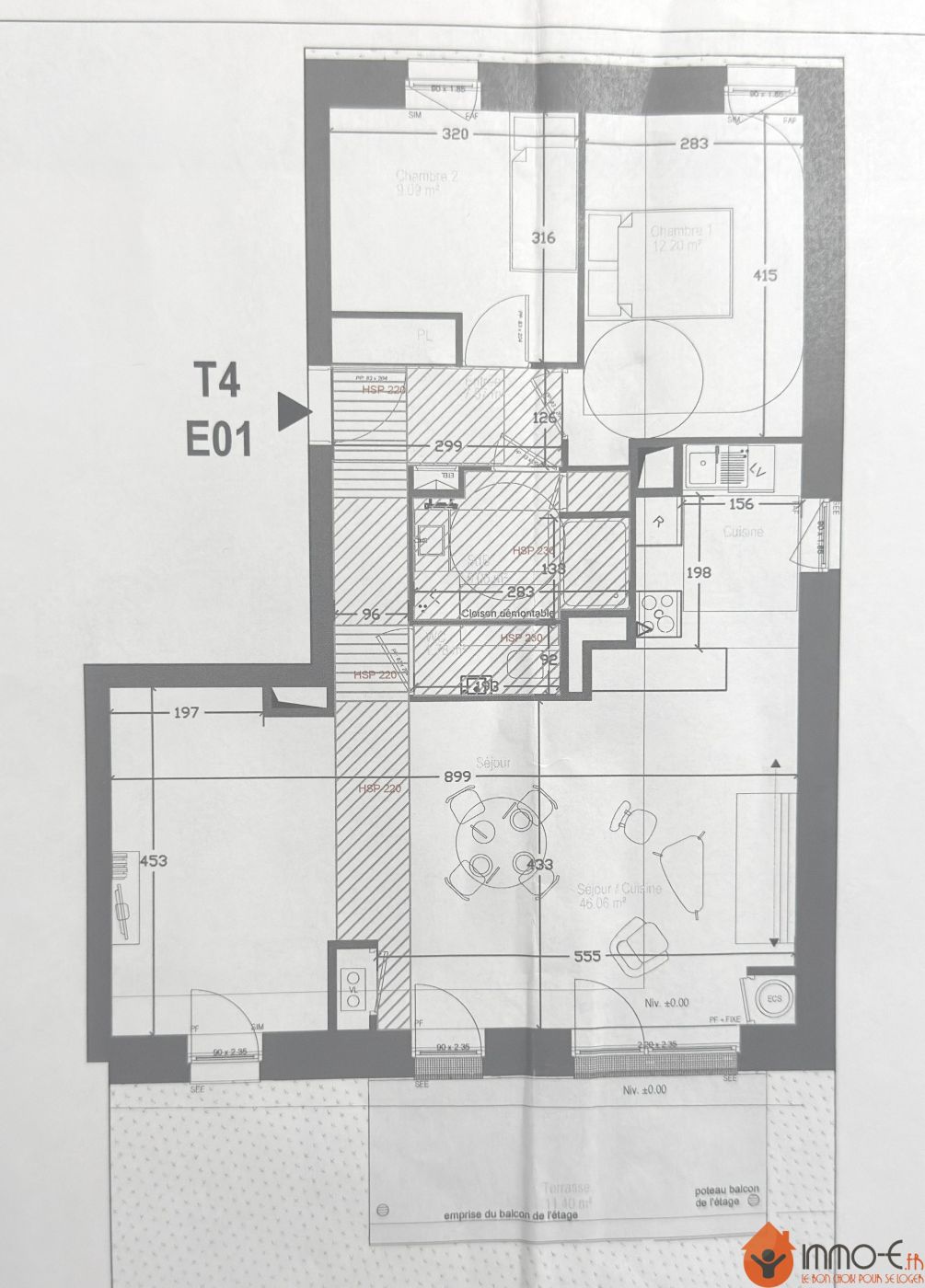
Charmant T4 RDC avec espace extérieur Découvrez un cadre de vie privilégié à Coupvray, au sein d'une résidence à taille humaine mêlant harmonieusement maisons et appartements. Située à proximité immédiate du Château de Coupvray et de ses espaces verdoyants, cette adresse offre un équilibre parfait entre le charme d'un village préservé et le dynamisme d'un secteur en plein essor. Vous profiterez d'une situation géographique stratégique, à moins de 10 minutes de la gare de Marne-la-Vallée Chessy et de l'univers féerique du Parc Disneyland. Cet appartement a été conçu pour offrir des volumes agréables : la pièce de vie, d'une surface de 30 m2 se compose d'un séjour de 21 m2 et d'une cuisine indépendante de 9 m2, les deux s'ouvrant sur une agréable terrasse de 10,5 m2, idéale pour vos moments de détente en extérieur. L'espace nuit se compose de trois chambres confortables, dont une chambre principale de 13,5 m2, complétées par une salle de bains moderne, une salle d'eau avec WC et des toilettes indépendantes. Répondant aux exigences les plus strictes en matière d'isolation et de performance énergétique, ce logement vous garantit un confort thermique durable et des charges maîtrisées. La résidence dispose également d'un local à vélos sécurisé. Ce bien est proposé au prix de 333000 euros. Une place de stationnement privative est à prévoir en sus pour un montant de 10 000 euros. Pour faciliter votre acquisition, les frais de notaire vous sont actuellement offerts. Une opportunité rare de devenir propriétaire dans un secteur prisé, alliant calme résidentiel et hyper-connectivité. Visuels non contractuels. Copropriété de 120 lots - dont 51 lots habitation. Charges annuelles : 1800 euros.