Charmante maison de village avec pierre et poutres apparentes
Louvigny 14111
0
Honoraires à la charge du vendeur.
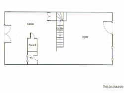
Située sur la bucolique commune de Louvigny, cette charmante maison de 79 m² se développe sur trois niveaux. L'aménagement intérieur a été orchestré afin de créer une atmosphère unique et chaleureuse. Le rez-de-chaussée, pensé comme un écrin confortable et cosy, accueille un salon empreint d'authenticité grâce aux murs en pierre et l'escalier en bois massif. Dans le prolongement de cet espace, la salle à manger et la cuisine équipée jouxtent un jardin coquet propice à faire partager des moments conviviaux. Au premier étage, les deux chambres de 10 m² et 13 m² cohabitent avec la salle de bains. Niché sous les combles, une troisième chambre mansardée de 12 m² complète l'espace nuit. Une cour sur l'avant de la maison et une cave complètent ce bien. Le résultat est un intérieur élégant et chaleureux où chaque élément trouve sa place et contribue à l'harmonie d'ensemble. Bien soumis au statut de copropriété horizontale sans charges ni syndic. Aucune procédure en cours. Classe énergie: D / Classe climatique: D Montant estimé des dépenses annuelles d'énergie sur prix moyen des énergies indexés sur les années 2021,2022, 2023 ( abonnement compris) : entre 1 200 euros et 1 670 euros. Les informations sur les risques auxquels ce bien est exposé sont disponibles sur le site Géorisques: https://www.georisques.gouv.fr Contact : Séverine ANGLIO, Agent commercial indépendant 06.73.55.34.05 EI RSAC : 849 299 722 RCS Nanterre Copropriété de 14 lots (Pas de procédure en cours). Séverine ANGLIO (EI) Agent Commercial - Numéro RSAC : 849299722 - NANTERRE.