Charmante maison de village avec terrasse tropézienne
Autignac 34480
0
Honoraires à la charge du vendeur.
Les charges de location sont prévisionnelles mensuelles avec régularisation annuelle.
Située au coeur du village, à deux pas des commerces, cette charmante maison de village offre un cadre de vie agréable sur plusieurs niveaux, avec de nombreux atouts pour profiter pleinement de la vie languedocienne.
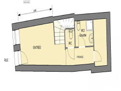
Disposition :
Rez-de-chaussée : Un hall d'entrée accueillant avec un coin bureau, une salle d'eau moderne comprenant douche, lavabo et WC, ainsi qu'une cave de rangement pratique. Premier étage : Une cuisine équipée lumineuse et fonctionnelle, jouxtant un salon chaleureux et une salle d'eau supplémentaire. Deuxième étage : Deux belles chambres confortables, parfaites pour accueillir famille et amis. Troisième étage : Une chambre sous les toits, baignée de lumière, qui s'ouvre sur une superbe terrasse tropézienne. Ce véritable havre de paix offre des vues dégagées, idéales pour des moments de détente en plein air. Autres avantages : Bien que la maison nécessite l'installation d'un système de chauffage, elle bénéficie d'une localisation idéale, d'une faible taxe foncière, et d'un agencement optimal pour une vie quotidienne agréable.
Cette maison est parfaite pour ceux qui recherchent le charme d'une maison de village avec un potentiel à exploiter. Une opportunité à ne pas manquer !
Honoraires à la charge du vendeur. Non soumis au DPE. Les informations sur les risques auxquels ce bien est exposé sont disponibles sur le site Géorisques : georisques.gouv.fr. Ce bien vous est proposé par un agent commercial (Entreprise individuelle).