Bienvenue dans votre futur chez-vous ! Nous sommes ravis de vous présenter cette solide maison de construction traditionnelle édifiée sur sous sol total et qui vous séduira par ses volumes et sa fonctionnalité. Située dans un environnement calme et résidentiel, celle ci offre un cadre de vie idéal pour une famille. Profitez de notre visite virtuelle pour découvrir cette opportunité à saisir !
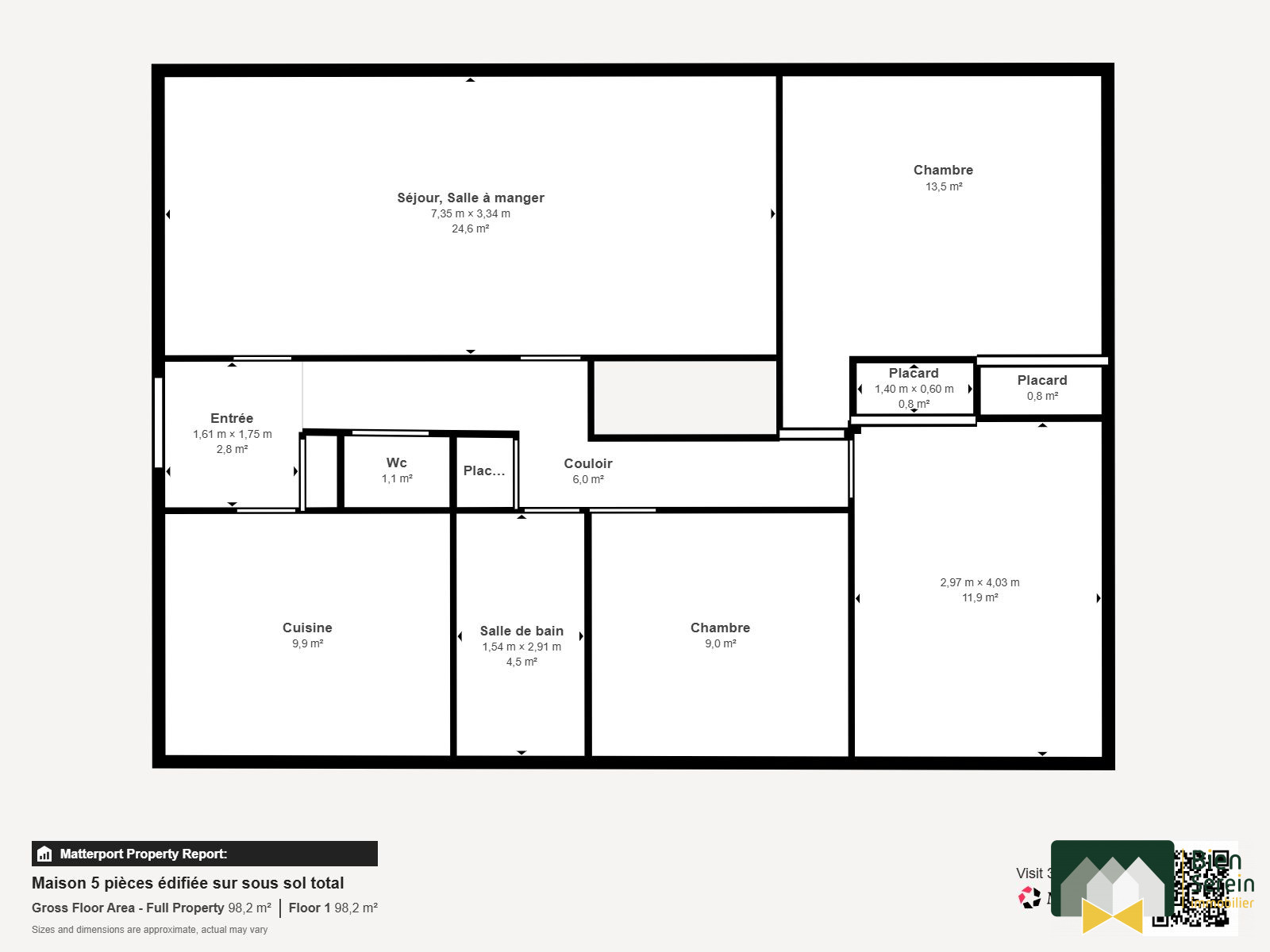
DECOUVREZ AU REZ DE CHAUSSEE : - Une spacieuse entrée avec rangements - Un séjour - salle à manger traversant avec cheminée insert - Une cuisine indépendante - Deux chambres - Une salle d'eau - Un wc
A L'ETAGE : - Deux chambres - Une salle d'eau avec wc - Deux greniers aménageables
ESPACE EXTERIEUR : - Une terrasse à l'avant de la maison - Un jardin entièrement clos - Plusieurs places de stationnements
COTE CONFORT : - Sous sol total - Vivable de plain pied - Nombreux espaces de rangements
L'EMPLACEMENT : A proximité immédiate des commodités, vous trouverez, à pied, un arrêt de bus à seulement 5 minutes et les écoles à 10 minutes. La gare de Lucé se situe à 14 minutes et le collège à 17 minutes.
N'hésitez pas à contacter votre agent au Noeud Pap' pour obtenir plus d'informations et visiter cette maison !
Honoraires à la charge du vendeur. Classe énergie D, Classe climat C Montant moyen estimé des dépenses annuelles d'énergie pour un usage standard, établi à partir des prix de l'énergie de l'année 2021 : entre 1830.00 et 2530.00 . Les informations sur les risques auxquels ce bien est exposé sont disponibles sur le site Géorisques : georisques.gouv.fr.