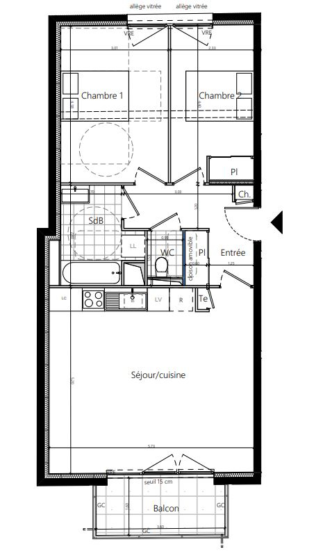
Découvrez cette maison de charme située au c?ur de Saint-Raphaël, alliant confort et convivialité. Dotée d'une surface habitable de 130 m², elle se décline sur deux étages et offre un espace de vie unique à ses habitants.
Dès l'entrée, vous serez séduit par son vaste séjour baigné de lumière naturelle grâce à de grandes baies vitrées, ainsi qu'une cuisine américaine moderne et fonctionnelle qui invite à partager des moments chaleureux en famille. La maison dispose de quatre chambres spacieuses dont une suite parentale, idéale pour préserver l'intimité de chacun.
Les retours enthousiastes ne tarissent pas d'éloges quant au jardin arboré qui entoure la maison, offrant un véritable havre de paix pour se détendre ou accueillir des proches lors des belles journées ensoleillées.
Située dans un quartier résidentiel prisé de Saint-Raphaël, la maison bénéficie du calme tout en étant à proximité immédiate des commodités. Vous trouverez à moins de 100 m des écoles maternelles et primaires, témoignant d'un cadre de vie familial d'exception.
**Caractéristiques techniques**
- Surface : 130 m².
- Typologie : Maison individuelle.
- Chauffage : Chauffage central au gaz.
- Charges : 150 €/mois.
- DPE : Classe C.
- GES : Classe D.
Les informations sur les risques auxquels ce bien est exposé sont disponibles sur le site Géorisques : www.georisques.gouv.fr.
Annonce présentée par Zefir.