Charmante périgourdine traditionnelle une maison à faire r
Prigonrieux 24130
0
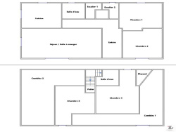
Située dans un quartier résidentiel calme et recherché, cette jolie périgourdine de 100 m2 environ, construite et entretenue avec soin par ses propriétaires actuels, incarne tout le charme et la solidité des constructions traditionnelles d'autrefois -- celles qu'on ne fait plus aujourd'hui. Bâtie sur un terrain agréable de 785 m2, entourant la maison, elle offre une qualité de bâti exceptionnelle, avec une toiture en parfait état, du double vitrage, et un entretien irréprochable. Elle mérite aujourd'hui un coup de jeunesse, pour révéler tout son potentiel et offrir une deuxième vie à ce cocon familial. Côté intérieur :
Une belle pièce de vie lumineuse avec possibilité d'ouvrir la cuisine pour un espace convivial
Deux chambres en rez-de-chaussée avec une salle d'eau refaite
À l'étage, deux chambres supplémentaires, une seconde salle d'eau et WC séparé
Un grand sous-sol complet de 85 m2, idéal pour un atelier, du stockage
Le tout avec une grande terrasse et sur un jardin agréable, facile à entretenir, où il fait bon vivre. Assainissement: tout à l'égoût, taxe foncière: 1100EUR Son emplacement est un véritable atout : tout se fait à pied ! Commerces, écoles, et commodités à proximité immédiate. Une maison saine, robuste, pleine de charme et d'avenir -- parfaite pour une famille ou un couple en quête d'un bien à personnaliser à leur goût.
100 m²
1 790 €
785 m²
6
4
2
2
1976
4
1
2
Oui
Oui
Oui
Consommations énergétiques
Logement économe
207
Logement énergivore (kWhEP/m2/an)
Émissions de gaz à effet de serre
Faible émission de GES
23
Forte émission de GES(kgeqCO2/m2/an)
Contact LOISEAU
Contacter gratuitement à l'aide du formulaire ci-dessous.