CHASSAGNY - Spacieuse maison familiale avec sous-sol complet
Chassagny 69700
0
Située dans un village recherché, à Chassagny cette maison individuelle construite en 1995 offre de beaux volumes avec 158 m2 habitables et surface totale au sol de 261 m2.
Fonctionnelle et conviviale, elle séduira les familles en quête de confort, de tranquillité et d'espaces multiples.
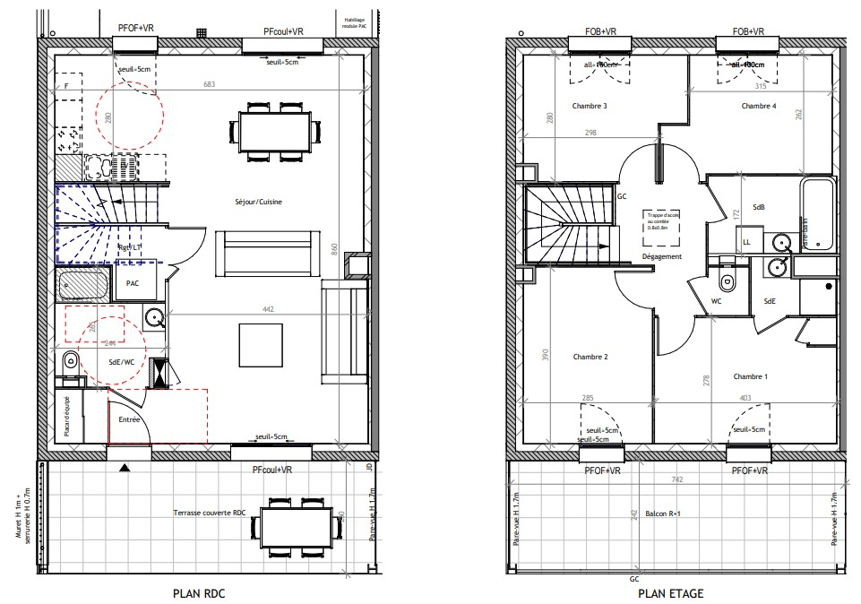
Agencement :
Étage principal (111 m2 habitables)
- Vaste pièce de vie lumineuse avec cuisine équipée ouverte sur séjour/salle à manger, accès direct à la terrasse ombragée
- 3 chambres spacieuses
- Salle d'eau moderne
- WC séparé
Rez-de-chaussée (128 m2)
- Chambre indépendante avec salle d'eau et WC (idéal pour recevoir ou espace ado)
- Grand garage
- Salle de jeux / atelier / buanderie / chaufferie / cave à vin (5 m2)
- Multiples pièces de rangement pratiques
Annexe
Véranda de 21 m2, climatisée (pompe à chaleur réversible), parfaite pour un coin détente ou bureau.
Extérieur : Terrain clos et arboré de 1 599 m2, joliment aménagé, offrant de nombreuses possibilités (potager, espace détente, piscine, jeux pour enfants...).
Confort & prestations :
Chauffage gaz citerne enterrée (plancher chauffant dans la pièce de vie + radiateurs dans les chambres)
Isolation renforcée (combles + garage)
Fenêtres double vitrage, volets bois + volets électriques
Idéalement située dans un village prisé, cette maison combine fonctionnalité, espace et cadre de vie agréable.
Un bien rare sur le secteur à visiter sans tarder !
Les informations sur les risques auxquels ce bien est exposé sont disponibles sur le site Géorisques : www.georisques.gouv.fr - Annonce rédigée et publiée par un Agent Mandataire -
158 m²
2 975 €
41 m²
1599 m²
6
4
2
2
1995
Américaine
Ouest
Oui
Consommations énergétiques
Logement économe
171
Logement énergivore (kWhEP/m2/an)
Émissions de gaz à effet de serre
Faible émission de GES
30
Forte émission de GES(kgeqCO2/m2/an)
Contact FACILIS IMMOBILIER PUTRA DOROTA
Contacter gratuitement à l'aide du formulaire ci-dessous.