Chateaugiron - Appartement T4 de 87 m2 avec balconS et parkings
Châteaugiron 35410
0
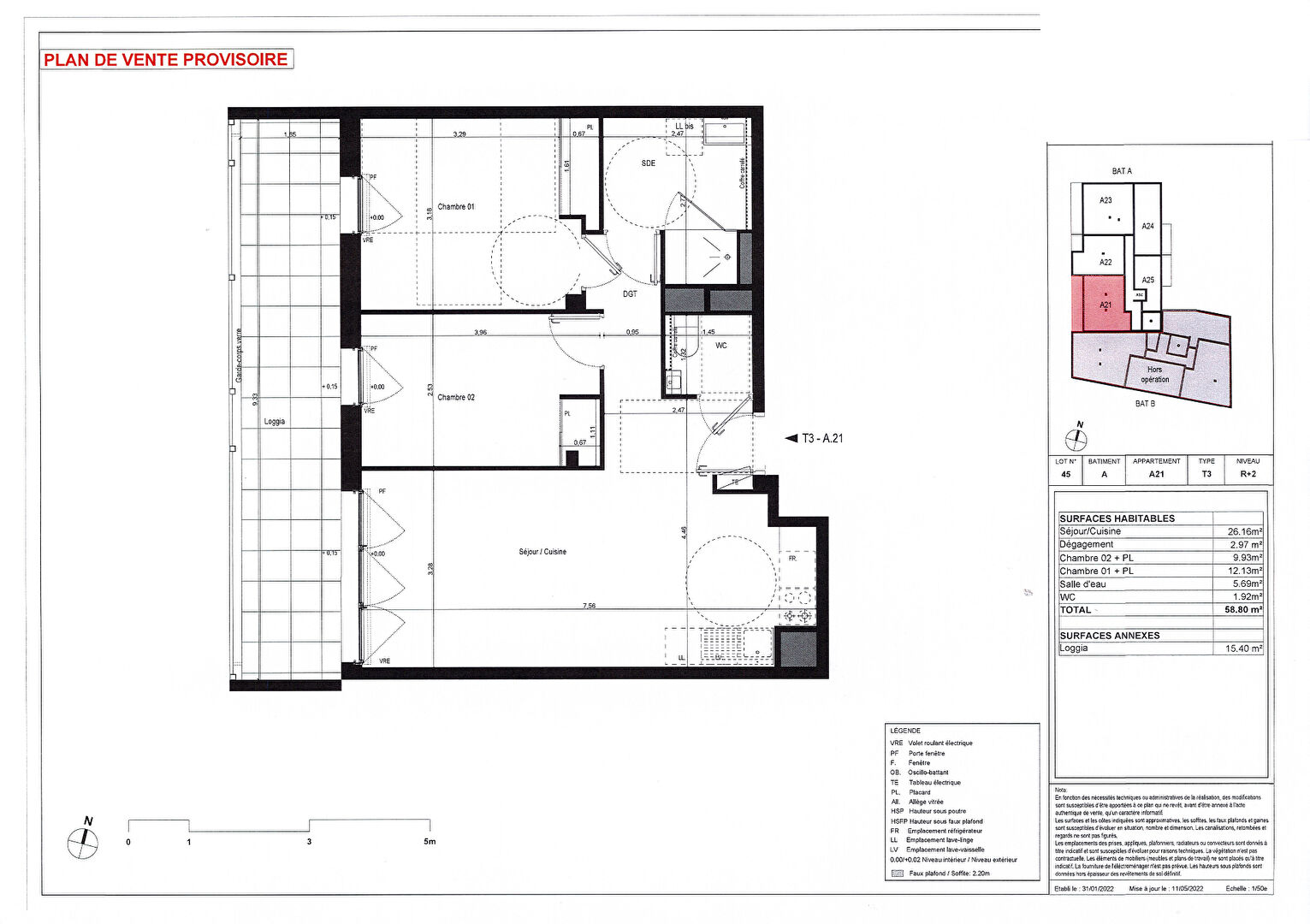
COGIR Neuf vous propose : Chateaugiron, ville aux portes de Rennes - Idéalement située proche des commerces du centre-ville tout en restant dans un environnement calme, venez découvrir cette nouvelle résidence de 84 logements allant du T2 au T4 pour habiter ou investir. Vous y trouverez cet appartement 4 pièces comprenant : Une entrée avec placard, 3 chambres dont une suite parentale avec sa salle de bain, une deuxième salle de bain, 2 WC séparés et un séjour-cuisine avec lumière traversante de 32 m2 donnant sur 2 balcons de 5 m2. Le bien dispose également de 2 places de parking en extérieur. Location-accession sur 25 appartements de la résidence. T2 à partir de 167 000.00 euros T3 à partir de 235 000.00 euros Corinne BOUFFORT : 06.08.47.94.30 - CBN9944