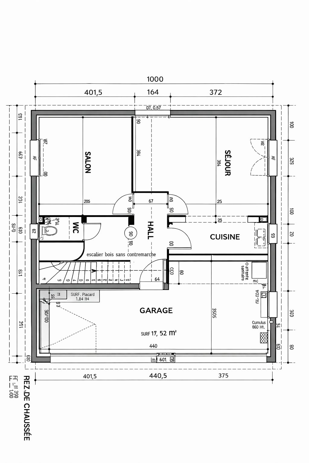
Chérisey, venez décrouvrir cette belle maison construite en 2016 sur plus de 13 ares de terrain dans un état proche du neuf! Une entrée spacieuse donnant sur une pièce de vie de 45 m² baignée de lumière par de larges baies vitrées. Une chambre/bureau en rdc avec salle d'eau. Un double garage de 30 m², un cellier entre celui-ci et la cuisine. Un wc indépendant. A l'étage, 2 chambres d'environ 15 m² au sol, une seconde salle d'eau, un wc indépendant et une pièce de 6m² pour du stockage. Pour finir, une suite parentale de plus de 30 m² au sol avec salle de bain privative, et dressing. Terrain de plus de 13 ares cloturé, arboré avec abris de jardin. Chauffage au sol par chaudière gaz condensation, ballon thermodynamique, DPE C. Callizot Benoit EI
Honoraires à la charge du vendeur. Classe énergie C, Classe climat C Montant estimé des dépenses annuelles d'énergie pour un usage standard : entre 1160.00 et 1620.00 sur les années 2021, 2022 et 2023 (abonnements compris). Les informations sur les risques auxquels ce bien est exposé sont disponibles sur le site Géorisques : georisques.gouv.fr.