Chessy , appartement en duplex de 3 chambres avec double ter
Chessy 77700
0
Honoraires à la charge du vendeur.
Exclusivité IMMOE
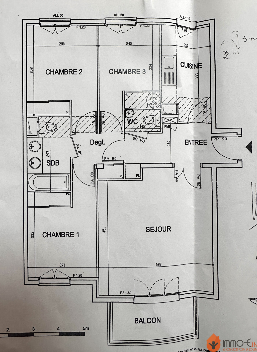
Comme une maison avec son entrée indépendante, donnant sur un jardin privatif de 50 m² . Vous accéderez au logement via une terrasse de 25 m²,pour découvrir :une entrée,une cuisine équipée ouverte sur un séjour lumineux de 33 m²,donnant sur un deuxième extérieur de 15 m² ,wc .
Au 1 er étage ,coin nuit agrémenté de 3 chambres ,ainsi que d'une sdb avec wc.
Deux stationnements couverts pour vos véhicules .
Les plus +++ :
+ Séjour triple exposition + Deux terrasses et un jardin privatif + Accès privatif + Grand séjour lumineux de 33 m² + Chaudière gaz de 2023 . Les informations sur les risques auxquels ce bien est exposé sont disponibles sur le site Géorisques : www.georisques.gouv.fr
86 m²
4 233 €
33 m²
48 m²
4
3
1 sur 1
2013
Sud
2
Consommations énergétiques
Logement économe
105
Logement énergivore (kWhEP/m2/an)
Émissions de gaz à effet de serre
Faible émission de GES
21
Forte émission de GES(kgeqCO2/m2/an)
Contact Nicolas PEREZ - IMMO E
Contacter gratuitement à l'aide du formulaire ci-dessous.