Honoraires à la charge de l'acquéreur (Prix hors honoraires : 285250 euros).
Situé à proximité de transports (tram, bus), commerces...
Résidence de standing sécuriséede 2024, au calme.
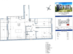
Bel appartement T 3 entièrement équipé de 71.29 m2 hab. environ avec terrasse dernier étage. Comprenant: Entrée avec placard, cuisine US équipée / séjour (expo. Ouest) donnant sur terrasse de 32.57m2, dégagement, deux chambres avec placard, salle de bains et WC indépendant. Chauffage individuel Gaz. Ascenseur. Faibles charges de copropriété.
71.29 m²
4 201 €
10 m²
4
2
1
1
3 sur 3
5.00 %
11/10/2024
88.08 € / mois
2024
Ouest
1 (10 m²)
Oui
1
Oui
1
Oui (85 lots)
Consommations énergétiques
Logement économe
124
Logement énergivore (kWhEP/m2/an)
Émissions de gaz à effet de serre
Faible émission de GES
24
Forte émission de GES(kgeqCO2/m2/an)
Contact PLANCHE Stéphanie
Contacter gratuitement à l'aide du formulaire ci-dessous.