T2 Colomiers Vente avec congé délivré Libre au 22/09/2026
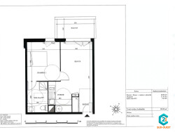
Situé à Colomiers, au sein d'une résidence récente, sécurisée et bien entretenue avec ascenseur, découvrez ce T2 de 39,93 m² au 2? et dernier étage. L'appartement se compose d'une entrée ouvrant sur un séjour avec cuisine ouverte, d'une chambre avec rangement, ainsi que d'une salle d'eau avec WC. Un balcon de 6,50 m² prolonge agréablement l'espace de vie. Une place de stationnement extérieure privative complète le bien. Situation locative : Le bien est actuellement occupé dans le cadre d'un bail en cours depuis septembre 2023. Un congé pour vente a été délivré au locataire, permettant une libération du bien au 22 septembre 2026. Le bien est ainsi proposé libre d'occupation à cette échéance, offrant plusieurs stratégies : résidence principale ou remise en location. Environnement : Secteur calme, à proximité immédiate des commodités, transports et bassins d'emploi. Éléments financiers : Loyer actuel : 585,94 charges comprises (dont 49 de provisions sur charges) Charges de copropriété : 70 / mois Taxe foncière : 872 (dont 106 de TEOM) Les honoraires sont à la charge du vendeur. Produit pertinent pour investisseur souhaitant sécuriser un actif avec visibilité à moyen terme ou pour un acquéreur préparant une future résidence principale.
Honoraires à la charge du vendeur. Dans une copropriété de 169 lots. Aucune procédure n'est en cours. Classe énergie C, Classe climat A Montant moyen estimé des dépenses annuelles d'énergie pour un usage standard, établi à partir des prix de l'énergie de l'année 2021 : entre 411.00 et 557.00 . Les informations sur les risques auxquels ce bien est exposé sont disponibles sur le site Géorisques : georisques.gouv.fr.
40 m²
2 975 €
6 m²
23 m²
2
1
1
1
2 sur 2
2012
Sud
Ouest
1 (6 m²)
Oui
1
Oui (169 lots)
Consommations énergétiques
Logement économe
140
Logement énergivore (kWhEP/m2/an)
Émissions de gaz à effet de serre
Faible émission de GES
4
Forte émission de GES(kgeqCO2/m2/an)
Contact C2i SUD OUEST
Contacter gratuitement à l'aide du formulaire ci-dessous.