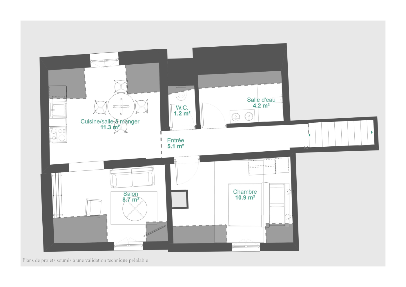
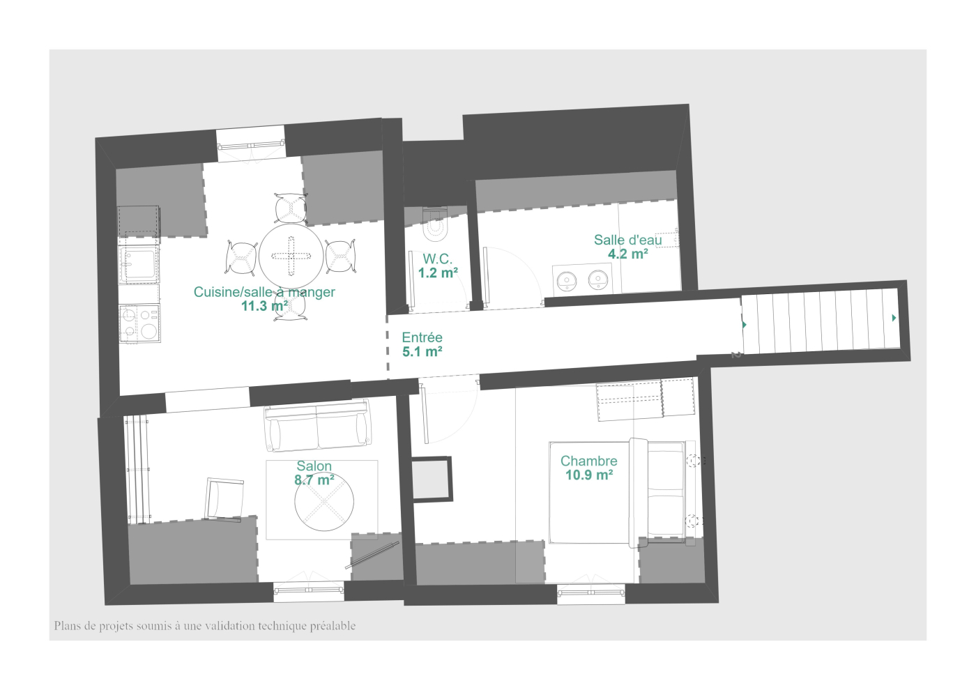
T3 de 67 m² - Terrasse & jardin - Centre-ville Le Châtelet-en-Brie (77) Imaginez un logement avec le confort et l'intimité d'une maison ? terrasse, jardin et espaces privatifs ? au prix d'un appartement ! Dans une petite copropriété intimiste de 4 logements, ce T3 au 1er étage offre calme, charme briard et vie de village à pied : commerces, écoles et marché accessibles en quelques minutes. À 10 min de Melun, 15 min de Fontainebleau et à deux pas de la Forêt de Fontainebleau, profitez d'un cadre naturel recherché tout en restant connecté à Paris (liaisons ferroviaires renforcées dès 2026). Le bien : à créer selon vos envies Proposé en état brut (plateau), ce 3 pièces de 67 m² vous permet de concevoir un intérieur 100 % à votre goût : - Pièce de vie lumineuse avec accès sur terrasse et jardin - 2 chambres confortables - Salle d'eau et WC séparés - Chauffage électrique individuel Extérieurs privatifs : Terrasse 24,8 m² - Jardin 32,6 m² Stationnement et cave disponibles en options payantes, sous réserve de disponibilité. Option livraison en état fini possible, mais non privilégiée, pour conserver la liberté de personnalisation. Livraison prévisionnelle : 4? trimestre 2026 Plans et visuels fournis à titre indicatif et non contractuels. Mention légale : vente sous réserve de division et constitution de la copropriété. Pourquoi c'est une opportunité rare - Petite copropriété de 4 logements seulement - Extérieurs privatifs rares en centre-ville - Cadre naturel et verdure à deux pas - Forte valorisation attendue grâce aux dessertes ferroviaires - Liberté totale pour aménager votre logement à votre image Idéal premier achat, couple, petite famille ou investisseur à la recherche d'un secteur dynamique entre nature et accessibilité Parisienne.
Conformément à l'article 6-2 de la loi du 2 janvier 1970, le titulaire de la carte professionnelle informe le signataire que ce document lui est présenté par une personne dûment habilitée par lui et exerçant sous le statut d'agent commercial avec le N° RSAC Melun : 901 527 499