Contemporaine 4 chambres, garage spacieux, grande terrasse
La Bouëxière 35340
0
Honoraires à la charge de l'acquéreur (Prix hors honoraires : 420000 euros).
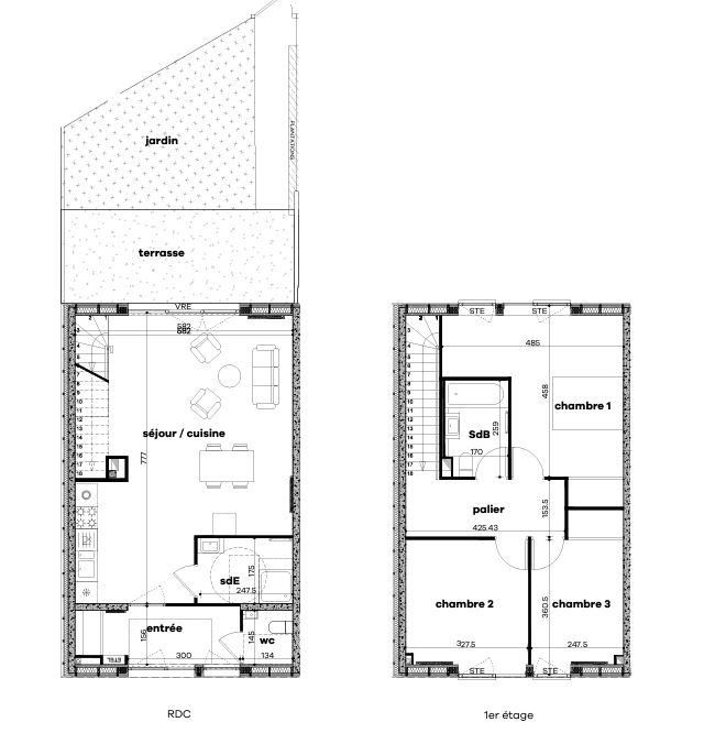
Votre conseiller NOOVIMO Emilie CANAL 0670863075 ecanal@noovimo.fr, vous propose: Maison contemporaine comprenant une entrée avec placard, une salle à manger avec poele à bois, un salon donnant sur terrasse en bois, cuiisne aménagée et équipée ouverte sur le séjour, chambre avec placard, salle d'eau, toilettes. A l'étage: une mezzanine, 3 chambres dont deux avec placard, salle de bains, toilettes. Une buanderie, grand garage, 2 places de stationnement à l'entrée, cabanon, jardin paysagé sans vis à vis. Quartier calme, centre ville, commerces, écoles et transports accessible à pieds. N'hésitez pas à me contacter pour de plus amples renseignements au 06.70.86.30.75 Prix: 420 000 euros net vendeur + 3.8% de frais d'agence soit 435 960 euros HAI. Honoraires à la charge de l'acquéreur. Les informations sur les risques auxquels ce bien est exposé sont disponibles sur le site Géorisques: http:/www.georisques.gouv.fr Nos honoraires sont consultables sur www.noovimo.fr Votre agent indépendant NOOVIMO, inscrit au RSAC de RENNES sous le no501581078. - Annonce rédigée et publiée par un Agent Mandataire -
157.54 m²
2 767 €
56 m²
439 m²
5
4
1
1
2
3.80 %
2012
3
1
Consommations énergétiques
Logement économe
188
Logement énergivore (kWhEP/m2/an)
Émissions de gaz à effet de serre
Faible émission de GES
6
Forte émission de GES(kgeqCO2/m2/an)
Contact Lamour Canal
Contacter gratuitement à l'aide du formulaire ci-dessous.