Coup de coeur assuré pour cette pépite de nouveau sur le marché
Saint-Pierre 97410
0
Suite à un refus de prêt.
Visite virtuelle disponible pour cette magnifique Villa d'architecture bioclimatique au sein d'une résidence de standing.
Plus qu'à poser vos valises dans ce véritable havre de paix, nichée à Mont-Vert les Bas, à une altitude idéale de 370 métres, je vous présente en exclusivité cette villa, d'une vingtaine d'années, au milieu d'un jardin verdoyant de 800m2 environ avec aucun travaux à prévoir.
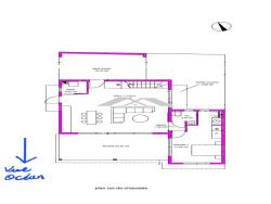
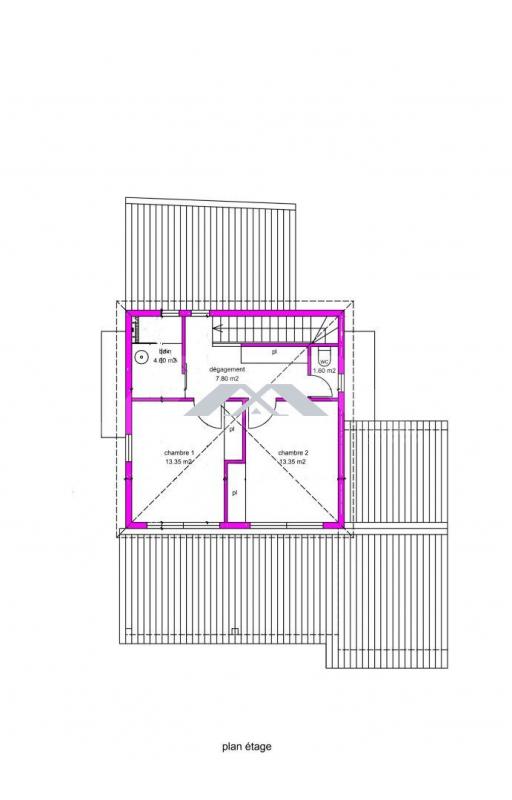
Cette villa récente de prés de 150m2 de type F5 est composée au rez-de-chaussée d'un vaste séjour-cuisine avec une belle hauteur sous plafond de 45m2 environ, d'une mezzanine de 20m2, de trois chambres (16,30m2, 12,50m2, 12,50m2), d'une salle de bain de 7m2 et un wc. À l'étage, on retrouve une chambre parentale avec un espace nuit, une simple vasque, un petit dressing et une douche à l'italienne de 16m2 environ.
Côté extérieur, vous pourrez vous détendre en profitant d'un espace bien-être-pool house composé d'une piscine au sel de 6,30*3,30 métres, d'un sauna d'un coin salon et d'une cuisine aménagée.
Cette villa se trouve au sein d'une résidence de standing où calme et tranquillité sont les maîtres-mots. Elle a en effet été construite sur un ancien verger aujourd'hui protégé avec des arbres numérotés.
Chauffe-eau électrique.
Assainissement individuel.
Charge de co-proprieté d'un montant de 130 euros environ / mois.
Montant de la taxe foncière : environ 2 500 euros.
Bien soumis au statut de co-propriété. Nombre de lots : 12. Pas de procédure en cours.
Cette annonce référence 263582 vous est présentée par votre agent commercial BSK Immobilier CHRISTOPHER CORRE (EI) immatriculé au RSAC de SAINT-PIERRE (97410) sous le numéro 90510684500019.
Prix du bien : 569 000,00 €
Les honoraires d'agence sont à la charge du vendeur.
A propos de la copropriété :
Pas de procédure en cours.
Nombre de lots : 11
Charges prévisionnelles annuelles : 1 300,00 €
Non soumis au DPE.
Les informations sur les risques auxquels ce bien est exposé sont disponibles sur le site Géorisques : www.georisques.gouv.fr