COURROUZE / ST JACQUES - Appartement 4 pièces 86.69m² Sud- 2ème étage - ascenseur - loggia 13.21m² - stationnement
Rennes 35000
0
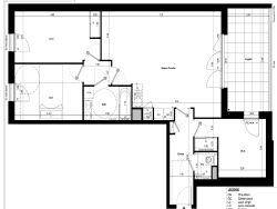
COURROUZE / ST JACQUES - A 500 m du métro - Appartement 4 pièces 86.69m² Sud- 3ème étage - ascenseur - loggia 13.21m² - stationnement privatif sécurisé A seulement 500 mètres de la station de métro ligne B - La Courrouze, à proximité immédiate des écoles, commerces et infrastructures, appartement de 4 pièces, d'une superficie de 86.69 m². Situé au 2ème étage d'une résidence contemporaine répondant aux normes RT2020 et équipée d'un ascenseur, ce bien bénéficie d'une luminosité grâce à son exposition plein sud. Il se compose : d'une entrée, séjour-salon avec cuisine ouverte, offrant un espace de vie convivial et baigné de lumière. Celui-ci s'ouvre sur une loggia de 13.21m² m². L'espace nuit se compose de trois chambres, d'une salle de bains et d'un WC indépendant. Placards. Stationnement en sous-sol sécurisé. Prix promoteur - Frais de notaire réduits. Les informations sur les risques auxquels ce bien est exposé sont disponibles sur le site Géorisques : www.georisques.gouv.fr. Photos non contractuelles - Suggestions d'aménagements. Copropriété de 24 lots - dont 24 lots habitation. (Pas de procédure en cours). Charges annuelles : 1238 euros.