COURROUZE / ST JACQUES - Appartement 4 pièces 87.10m² Sud- 4ème étage - ascenseur - terrasses de 59.04m² - stationnements
Rennes 35000
0
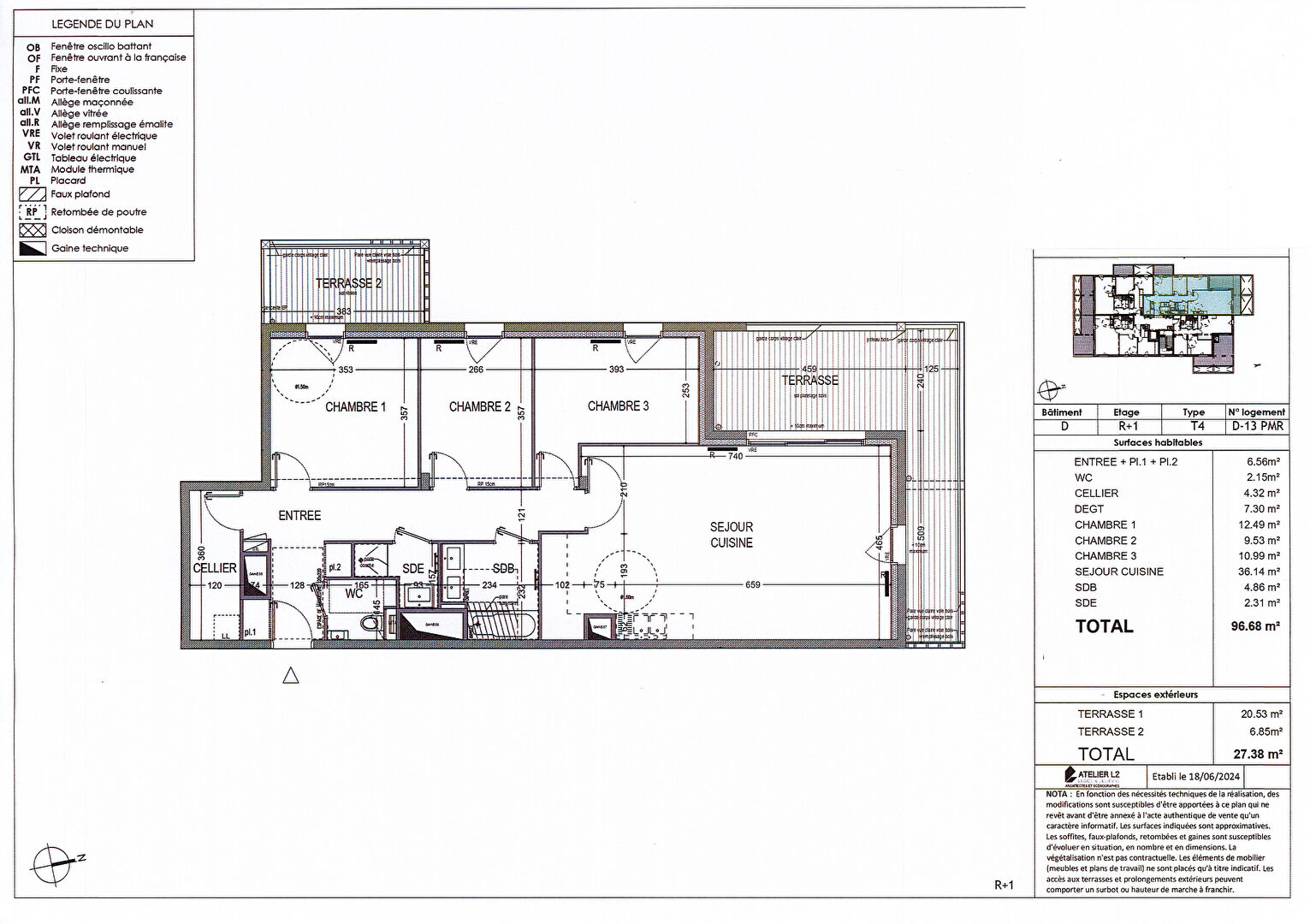
COURROUZE / ST JACQUES - A 500 m du métro - Appartement 4 pièces 87.10m² Sud- 4ème étage - ascenseur - terrasses de 59.04m²- stationnements privatifs A seulement 500 mètres de la station de métro ligne B - La Courrouze, à proximité immédiate des écoles, commerces et infrastructures, laissez-vous séduire par cet appartement de 4 pièces, d'une superficie de 87.10 m². Niché au 4ème étage d'une résidence contemporaine répondant aux normes RT2020 et équipée d'un ascenseur, ce bien bénéficie d'une luminosité grâce à son exposition plein sud. Dès l'entrée, un hall avec placard mène à un séjour-salon traversant avec cuisine ouverte, offrant un espace de vie convivial et baigné de lumière. Celui-ci s'ouvre sur deux superbes terrasses de 37,47 m² et 21,57 m². L'espace nuit se compose de trois chambres confortables, d'une salle de bains, d'une salle d'eau et d'un WC indépendant. Contactez-nous dès aujourd'hui pour en savoir plus ! Prix promoteur - Frais de notaire réduits. Les informations sur les risques auxquels ce bien est exposé sont disponibles sur le site Géorisques : www.georisques.gouv.fr. Photos non contractuelles - Suggestions d'aménagements. Copropriété de 24 lots - dont 24 lots habitation. (Pas de procédure en cours). Charges annuelles : 1252 euros.