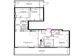
Dernière opportunité ! A visiter ! Dans le centre de Craponne, à proximité des commerces et transports, Les Experts du Neuf vous propose à la vente ce très bel appartement situé au dernier étage avec 2 Terrasses. Ce ravissant T4 de 96,84m² saura vous séduire par sa situation, son séjour avec sa cuisine américaine donnant sur une très belle terrasse de 28m². Il est aussi composé d'une salle de bains, une salle d'eau, de trois chambres sur terrasse de 13m² ainsi qu'un WC indépendant. L'appartement est vendu avec un garage en sous sol. Bâtiment basse consommation Contactez Grégory pour plus d'informations Visuel non contractuel Copropriété de 34 lots - dont 34 lots habitation. (Pas de procédure en cours). Charges annuelles : 1800 euros.