Craponne centre Plateau 114 m2 avec jardin de 100 m2
Craponne 69290
0
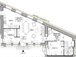
À VENDRE Plateau à aménager de 114 m2 avec jardin de 100m2 à Craponne centre.
Situé dans le cadre charmant et paisible d'une ancienne école maternelle, ce plateau atypique de 114 m2 brut est à rénover entièrement et vous invite à laisser libre cours à votre imagination !
La surface brute au sol est de 95,9m2 et vous pouvez créer une mezzanine habitable de 18,4m2.
Au c?ur de Craponne, dans un environnement résidentiel recherché, cet espace se distingue par son jardin privatif, une place de parking (possibilité 2ème place 5000EUR) et surtout un potentiel architectural unique : avec ses plafonds hauts, il est tout à fait envisageable d'exploiter l'espace pour créer une ou plusieurs mezzanines.
L'intérieur est brut et nécessite une rénovation complète, mais offre une belle base pour un projet de vie sur mesure, que ce soit en résidence principale, en loft atypique, ou pour un investissement original.
Un bien rare, chargé d'histoire, à transformer selon vos envies !
Craponne Quartier calme
Jardin privatif de 100 m2
1 Place de parking
114 m2 brut à aménager
Hauteur sous plafond permettant mezzanine
À rénover entièrement
Les informations sur le risque auxquels ce bien est exposé sont disponibles sur le site Géorisques : www.georisques.gouv.fr
Envie d'en savoir plus ? Contactez votre Gones.
Bien présenté par Agences de France par délégation.
Agences de France ? SIREN : 899413603 ? Titulaire de la carte T : 29012021000000009 non habilité à percevoir des fonds
101 m²
2 465 €
4
3
1
1
1
Sud
Ouest
Oui
Contact RUBIO-SALVA
Contacter gratuitement à l'aide du formulaire ci-dessous.