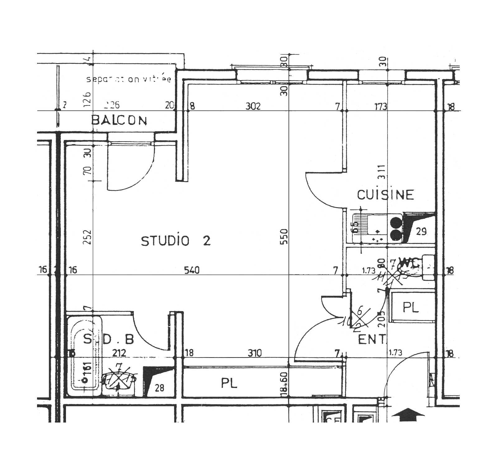
Découvrez ce charmant appartement T2 de 30.54 m², situé au 3ème étage d'un immeuble de 3 étages. Profitez d'une exposition sud-ouest qui baigne les pièces d'une lumière naturelle chaleureuse tout au long de la journée. Le séjour spacieux de 19 m² est parfait pour recevoir vos invités ou vous détendre après une longue journée.
Cet appartement en bon état comprend une chambre confortable, une salle d'eau moderne, et des toilettes indépendantes pour plus de commodité. Les ouvertures en PVC et les portes à double vitrage assurent une isolation optimale, tandis que la hauteur sous plafond de 4 mètres ajoute une touche d'élégance et d'espace.
Imaginez-vous vivre dans un appartement où chaque détail a été pensé pour votre confort. La cuisine équipée vous permet de préparer vos repas préférés avec facilité, tandis que la cave vous offre un espace supplémentaire pour ranger vos affaires.
Situé dans un quartier dynamique, vous trouverez à proximité plusieurs commodités : des crèches, des écoles maternelles et élémentaires, des collèges, des restaurants, des parcs et jardins, des commerces d'alimentation générale, des médecins généralistes, et même un hôpital à 10 minutes à pied. Les transports en commun sont également bien desservis avec des bus et des métros à proximité.
Ne manquez pas cette opportunité de vivre dans un appartement lumineux et bien équipé. Contactez-nous dès maintenant pour une visite et laissez-vous séduire par ce petit nid douillet qui n'attend que vous !
Honoraires à la charge du vendeur. Dans une copropriété de 11 lots. Quote-part moyenne du budget prévisionnel 1 050 /an. Aucune procédure n'est en cours. Classe énergie E, Classe climat B Montant estimé des dépenses annuelles d'énergie pour un usage standard : entre 830.00 et 1124.00 sur les années 2021, 2022 et 2023 (abonnements compris). Les informations sur les risques auxquels ce bien est exposé sont disponibles sur le site Géorisques : georisques.gouv.fr.
Votre conseiller INSTANTiMMO : Mickaël Guersan Agent commercial (Entreprise individuelle) RSAC en cours RCP en cours. INSTANTiMMO - Réseau d'agences immobilières et de conseillers immobiliers. Rejoignez-nous sur www.instantimmo.fr.
30.54 m²
6 549 €
19 m²
2
1
1
1 (séparé)
3 sur 3
16/01/2026
94.38 € / mois
Sud
Ouest
Oui
Oui (11 lots)
Consommations énergétiques
Logement économe
325
Logement énergivore (kWhEP/m2/an)
Émissions de gaz à effet de serre
Faible émission de GES
10
Forte émission de GES(kgeqCO2/m2/an)
Contact Mickaël Guersan
Contacter gratuitement à l'aide du formulaire ci-dessous.