Honoraires à la charge de l'acquéreur (Prix hors honoraires : 180000 euros).
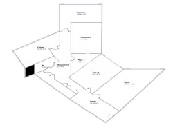
? CRÉTEIL VILLAGE Opportunité Rare : Cabinet Médical, Habitation ou Colocation à Haut Rendement Situé au coeur du secteur très recherché de Créteil Village, à deux pas de la rue piétonne commerçante, des bords de Marne et du Métro Ligne 8, découvrez cet appartement de 3 pièces offrant un potentiel d'aménagement unique. Actuellement exploité en cabinet médical, ce bien bénéficie d'une distribution en 'étoile' sans aucune perte de place, idéale pour de multiples projets. ? Les points forts du bien : Emplacement Premium : Calme et centralité absolue. Proximité immédiate des commerces, des écoles et des transports. Résidence de Standing : Copropriété privée, sécurisée et parfaitement entretenue avec gardien. Confort & Énergie : Logement entièrement équipé en double vitrage offrant une excellente isolation. DPE de bonne qualité, un atout majeur pour la location ou la revente. ? Un potentiel d'aménagement triple : Investissement Locatif / Colocation : Grâce à son plan optimisé (Dégagement central de 9,3 m²), il est possible de conserver l'espace pour bénéficier de 4 chambres indépendantes. Une configuration parfaite pour maximiser la rentabilité locative dans un secteur à forte demande. Activité Libérale : Idéal pour des professions médicales ou paramédicales (configuration actuelle). Le plan permet de dissocier facilement les salles de consultation de la salle d'attente. Résidence Principale : Un appartement de 3 pièces spacieux et lumineux, offrant un cadre de vie serein à proximité immédiate de l'animation du Village et dépendant de l'école Victor Hugo. ? En bref : Surface optimisée : Séjour (15,6 m²), Bureau/Chambre (9,1 m²), Chambres (11 m² et 10,6 m²). Annexes : Cuisine séparée, grand placard/cellier, WC indépendants. Localisation : Créteil Village / Bords de Marne / Métro 8. Ne manquez pas cette opportunité stratégique alliant emplacement de premier choix et modularité totale.
Honoraires inclus de 5.56% TTC à la charge de l'acquéreur. Prix hors honoraires 180 000 . Dans une copropriété de 110 lots. Aucune procédure n'est en cours. Classe énergie D, Classe climat C Montant estimé des dépenses annuelles d'énergie pour un usage standard : entre 1200.00 et 1670.00 sur les années 2021, 2022 et 2023 (abonnements compris). Les informations sur les risques auxquels ce bien est exposé sont disponibles sur le site Géorisques : georisques.gouv.fr.
Votre conseiller INSTANTiMMO : Mickaël Guersan Agent commercial (Entreprise individuelle) RSAC en cours RCP en cours. INSTANTiMMO - Réseau d'agences immobilières et de conseillers immobiliers. Rejoignez-nous sur www.instantimmo.fr.