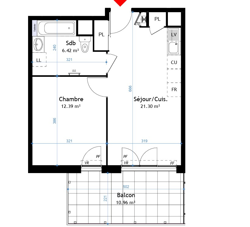
EXCLUSIVITÉ - A VENDRE - CROLLES - Je vous présente 'PAUL' !! 'PAUL' réside dans des copropriétés dernière génération (2024) dans un secteur prisé du Grésivaudan. Orienté Sud-ouest et d'une surface de 40,60m², il est constitué d'une belle pièce de vie avec cuisine américaine ouverte sur sa belle terrasse, une chambres, une salle d'eau + wc. De nombreux rangements sont prévus pour vous faciliter la vie. 'PAUL' est d'autant plus chaleureux avec sa terrasse d'environ 9m² qui vous permettra de profiter au calme et en toute sérénité des belles soirées. Il est également économique grâce à sa bonne isolation, ce qui le classe au niveau énergétique en B (DPE) et B (GES). Bien entendu il peut être accompagné d'un garage en sus du prix. Pour finir 'PAUL' est à proximité de tout: École, transports en commun et toutes les commodités sont à deux pas de chez lui. Venez le rencontrer SANS TARDER !!Pour plus de renseignements et toutes visites n'hésitez pas à contacter: Thomas MIARA o6 72724268/t.miara@mon-nid-immobilier.frLe bien immobilier est soumis au statut de copropriété. La présente annonce est rédigée par un agent commercial mandataire immatriculé au Registre Spécial des Agents Commerciaux (RSAC) du tribunal de Commerce de Grenoble sous le n°809901986.
Honoraires à la charge du vendeur. Dans une copropriété de 70 lots. Aucune procédure n'est en cours. Classe énergie C, Classe climat C Montant estimé des dépenses annuelles d'énergie pour un usage standard : entre 100.00 et 100.00 sur les années 2021, 2022 et 2023 (abonnements compris). Les informations sur les risques auxquels ce bien est exposé sont disponibles sur le site Géorisques : georisques.gouv.fr.
Votre conseiller Mon Nid Immobilier : Thomas MIARA Agent commercial (Entreprise individuelle) RSAC 809901986