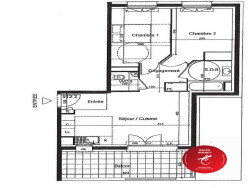
Au coeur du village, dans le charme d'une bastide provençale, découvrez cet appartement de type 3 en rez-de-chaussée d'environ 70 m2, entièrement rénové avec goût. Il se compose d'une agréable pièce de vie climatisée et lumineuse avec cuisine ouverte aménagée et équipée, de deux grandes chambres climatisées dont une avec salle d'eau privative, d'un dégagement, d'une seconde salle d'eau et d'un WC indépendant. En complément, vous bénéficierez d'un grenier d'environ 16 m2 ainsi que d'un jardinet non attenant d'environ 30m2, idéal pour vos moments de détente. Situé à proximité immédiate des commodités et d'un parking, cet appartement allie confort moderne et authenticité provençale. Une belle opportunité à visiter sans tarder ! Les informations sur les risques auxquels est exposé ce bien sont disponibles sur le site Géorisques : www.georisques.gouv.fr
70 m²
3 429 €
3
2
2
1
1900
Oui
Oui
Oui
Consommations énergétiques
Logement économe
122
Logement énergivore (kWhEP/m2/an)
Émissions de gaz à effet de serre
Faible émission de GES
3
Forte émission de GES(kgeqCO2/m2/an)
Contact Cuers Immobilier & L'immobiliere
Contacter gratuitement à l'aide du formulaire ci-dessous.