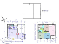
Cuers, au coeur du village, à proximité immédiate des écoles et des commodités, découvrez ce projet non achevé d'environ 115m2, sur une parcelle de 155m2 déjà clôturée, avec viabilités en bordure. Un permis de construire a été obtenu pour une villa de type 5 + piscine + garage communiquant d'environ 21m2. Au au rez-de-chaussée, une entrée avec placard, un wc, une grande pièce à vivre de 47.50m2 avec de belles ouvertures donnant sur un jardinet ensoleillé. A l'étage, un dégagement desservant une suite parentale avec placard et salle d'eau + terrasse privative, trois chambres, une salle d'eau et un wc séparé. Ce bien vendu en l'état actuel, non achevé, saura séduire une famille, un investisseur, un artisan..., sans la contrainte des longs délais d'obtention d'un permis de construire. Les informations sur les risques auxquels est exposé ce bien sont disponibles sur le site Géorisques : www.georisques.gouv.fr
155 m²
1 123 €
155 m²
Oui
Contact Cuers Immobilier & L'immobiliere
Contacter gratuitement à l'aide du formulaire ci-dessous.