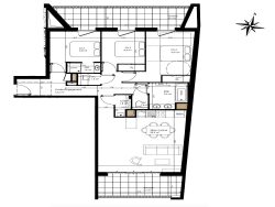
Situé en plein coeur du bourg de Pessac, cet appartement bénéficie d'un emplacement exceptionnel. Véritable centre névralgique de la commune, le bourg de Pessac offre un cadre de vie unique alliant charme, dynamisme et praticité. À quelques pas, vous trouverez toutes les commodités essentielles : commerces de proximité, marché, restaurants, écoles et services, le tout dans une atmosphère conviviale et animée. Parfaitement desservi par les transports en commun, dont le tramway, il permet un accès rapide à Bordeaux tout en profitant d'un cadre de vie plus paisible et verdoyant. Niché au sein d'une résidence moderne et intimiste à taille humaine, cet appartement vous offre ainsi une adresse rare, idéale pour une vie quotidienne facile et agréable. Ce T4 de 90m2, situé au premier étage, propose un agencement fonctionnel et lumineux. L'entrée s'ouvre sur une belle pièce de vie avec cuisine ouverte et cellier attenant, donnant accès à une terrasse intimiste et sans vis à vis, idéale pour profiter des beaux jours car exposition sud. L'espace nuit comprend trois chambres (10m2 et 15m2 avec placard), une suite parentale avec salle d'eau, une salle de bains confortable double vasque, et deux WC indépendants. Un appartement pensé pour le confort au quotidien, dans un cadre moderne et raffiné.
Une place de parking sécurisée complète ce bien en SUS obligatoire.
- Frais de Notaires Réduits - Garanties - RE 2020 - Exonération de Taxe Foncière - Très bientot Disponible - ...
Visuel non contractuel suggestion d'aménagement
AVEC ASCENSEUR - TERRASSE - PARKING - EXPO SUD
Honoraires à la charge du vendeur. Dans une copropriété de 15 lots. Aucune procédure n'est en cours. DPE en cours. Les informations sur les risques auxquels ce bien est exposé sont disponibles sur le site Géorisques : georisques.gouv.fr.